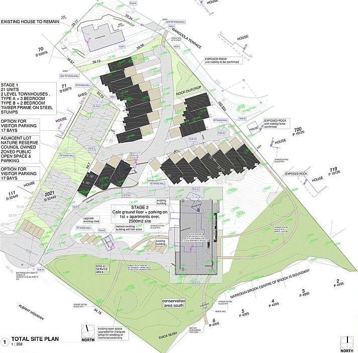
12-14 Wangoola Terrace, Mount Nasura WA 6112 IN PLANNING
This information is estimated by the OpenLot research team. Let us know here to provide up-to-date information about this development.
| Total new homes | N/A |
| Area size | 1.50 hectares |
| Growth Region | Perth South East Growth Areas |
| City council | City of Armadale |
| Developer | N/A |
| Distance to | Perth Airport - 24 km south Perth CBD - 27 km south-east |
Townhomes:
Popular Estates near 12-14 Wangoola Terrace, Mount Nasura
Updates for 12-14 Wangoola Terrace, Mount Nasura
Location & Map for 12-14 Wangoola Terrace, Mount Nasura
Vacancy Rate in Mount Nasura WA 6112
View full vacancy rate history in Mount Nasura WA 6112 via SQM Research.
Schools near 12-14 Wangoola Terrace, Mount Nasura
Here are 6 schools near 12-14 Wangoola Terrace, Mount Nasura:
PP-6 Independent Primary School
K-6 Government Primary School
7-12 Independent Secondary School
7-12 Government Secondary School
7-12 Government Special School
K-6 Government Primary School
Reviews & Comments on 12-14 Wangoola Terrace, Mount Nasura
Estate Brochure, Masterplan, Engineering Plan, Plan of Subdivision (POS), Design Guidelines
FAQs about 12-14 Wangoola Terrace, Mount Nasura
- Pioneer Village School - 235m south-east
- Armadale Primary School - 371m east
- John Calvin Christian College - 1.5km west
- Armadale Senior High School - 1.5km south
- Armadale Education Support Centre - 1.5km south
- Kingsley Primary School - 1.7km north
Popular Estates near 12-14 Wangoola Terrace, Mount Nasura
Latest New Home Articles for You
19/Aug/2025 | OpenLot.com.au
🏡 Suburb Profile: Beveridge
19/Aug/2025 | OpenLot.com.au
test
19/Aug/2025 | OpenLot.com.au
tests
13/Jun/2025 | OpenLot.com.au
Display Homes at Playford Alive Estate: A Thriving Community at the Heart of Munno Para
Welcome to Playford Alive, a vibrant and dynamic masterplanned community ...
11/Jun/2025 | OpenLot.com.au
Display Homes at Ocean Hill Estate: A Thriving Community by the Coast
A short stroll from the white sands of Madora Beach and fringed by the co...
10/Jun/2025 | OpenLot.com.au
Display Homes at Bluestone Estate: An Established Community in the Mount Barker
Whether you’re a first home buyer, a growing family, or looking to downsi...
09/Jun/2025 | OpenLot.com.au
Queensland Leads, But NSW and VIC Fall Behind, in New Housing Buyer Demand Index
New data reveals that Australia’s new housing market remains resilient de...
06/Jun/2025 | OpenLot.com.au
Display Homes at Minters Fields Estate: A Scenic Hillside Community in Mount Barker
Nestled in the heart of Mount Barker, Minters Fields offers a truly remar...
03/Jun/2025 | OpenLot.com.au
🏡 Step Inside a Frenken Home at Smiths Lane
During a recent visit to the Smiths Lane display village, OpenLot.com.au ...






