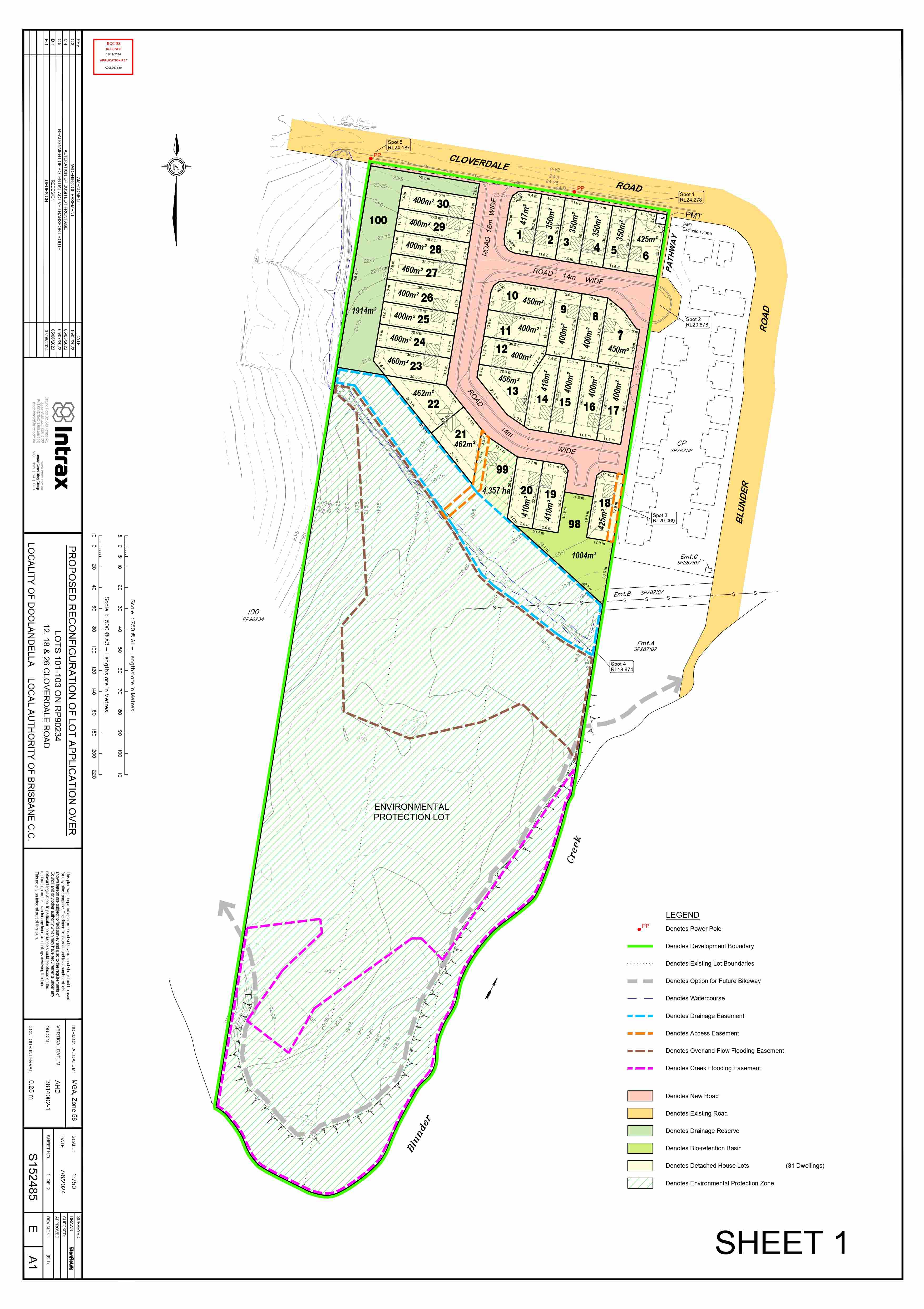
12-26 Cloverdale Road, Doolandella QLD 4077 IN PLANNING
This information is estimated by the OpenLot research team. Let us know here to provide up-to-date information about this development.
| Total new homes | 30 |
| Area size | 6.34 hectares |
| Growth Region | Greater Brisbane Growth Areas |
| City council | Brisbane City Council |
| Developer | N/A |
| Distance to | Brisbane CBD - 17 km south Brisbane Airport - 29 km south-west Gold Coast CBD - 60 km north-west |
Land for Sale, House and Land Packages:
Popular Estates near 12-26 Cloverdale Road, Doolandella
Updates for 12-26 Cloverdale Road, Doolandella
Location & Map for 12-26 Cloverdale Road, Doolandella
Visit Display Homes near 12-26 Cloverdale Road, Doolandella
Vacancy Rate in Doolandella QLD 4077
View full vacancy rate history in Doolandella QLD 4077 via SQM Research.
Schools near 12-26 Cloverdale Road, Doolandella
Here are 6 schools near 12-26 Cloverdale Road, Doolandella:
Prep-12 Independent Combined School - School Head Campus
7-12 Government Secondary School
Prep-6 Government Primary School
Prep-6 Government Primary School
Prep-6 Government Primary School
Prep-6 Government Primary School
Reviews & Comments on 12-26 Cloverdale Road, Doolandella
Estate Brochure, Masterplan, Engineering Plan, Plan of Subdivision (POS), Design Guidelines
FAQs about 12-26 Cloverdale Road, Doolandella
- St John's Anglican College - 1.1km west
- Forest Lake State High School - 1.2km west
- Pallara State School - 1.4km south-east
- Serviceton South State School - 1.8km north
- Grand Avenue State School - 2.5km west
- Forest Lake State School - 2.6km west
Popular Estates near 12-26 Cloverdale Road, Doolandella
Latest New Home Articles for You
19/Aug/2025 | OpenLot.com.au
🏡 Suburb Profile: Beveridge
19/Aug/2025 | OpenLot.com.au
test
19/Aug/2025 | OpenLot.com.au
tests
13/Jun/2025 | OpenLot.com.au
Display Homes at Playford Alive Estate: A Thriving Community at the Heart of Munno Para
Welcome to Playford Alive, a vibrant and dynamic masterplanned community ...
11/Jun/2025 | OpenLot.com.au
Display Homes at Ocean Hill Estate: A Thriving Community by the Coast
A short stroll from the white sands of Madora Beach and fringed by the co...
10/Jun/2025 | OpenLot.com.au
Display Homes at Bluestone Estate: An Established Community in the Mount Barker
Whether you’re a first home buyer, a growing family, or looking to downsi...
09/Jun/2025 | OpenLot.com.au
Queensland Leads, But NSW and VIC Fall Behind, in New Housing Buyer Demand Index
New data reveals that Australia’s new housing market remains resilient de...
06/Jun/2025 | OpenLot.com.au
Display Homes at Minters Fields Estate: A Scenic Hillside Community in Mount Barker
Nestled in the heart of Mount Barker, Minters Fields offers a truly remar...
03/Jun/2025 | OpenLot.com.au
🏡 Step Inside a Frenken Home at Smiths Lane
During a recent visit to the Smiths Lane display village, OpenLot.com.au ...











