120 Jensen Road, Wadalba NSW 2259 IN PLANNING
This information is estimated by the OpenLot research team. Let us know here to provide up-to-date information about this development.
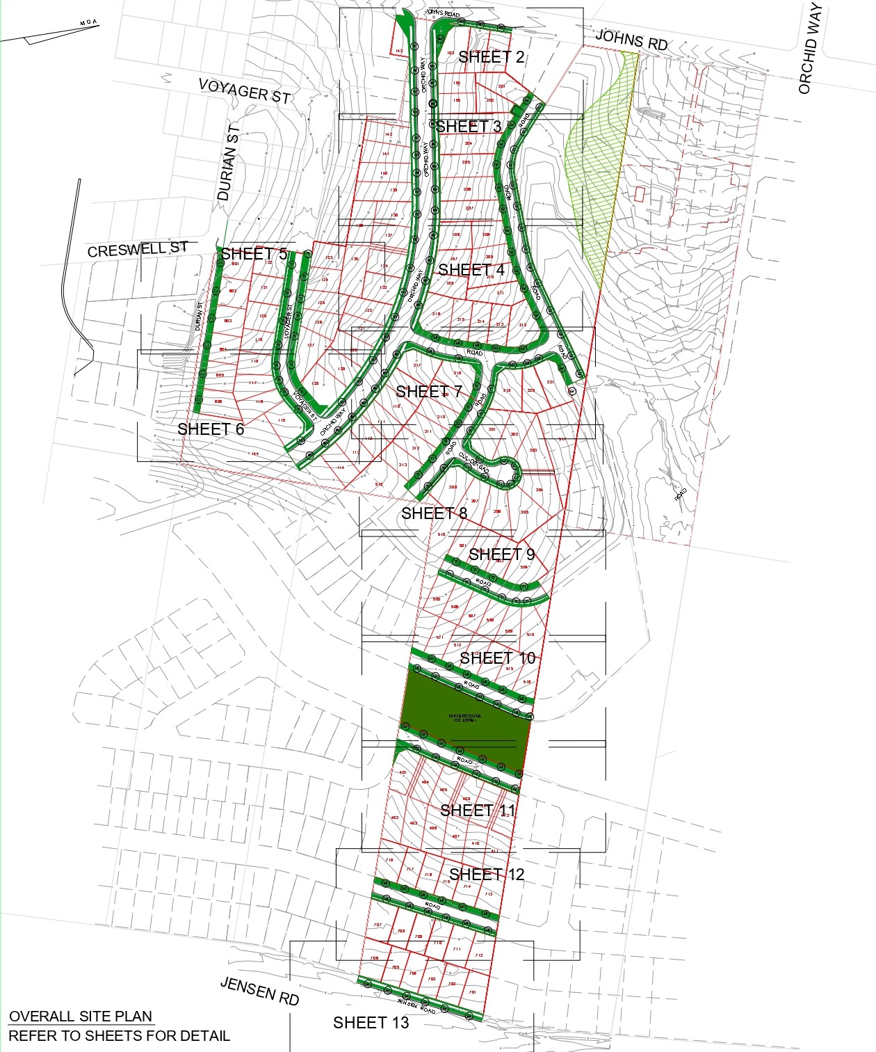
| Total new homes | 128 |
| Area size | 10.95 hectares |
| Growth Region | Central Coast Growth Areas |
| City council | Central Coast Council |
| Developer | N/A |
| Distance to | Newcastle CBD - 49 km south-west Sydney CBD - 71 km north |
Land for Sale, House and Land Packages:
Popular Estates near 120 Jensen Road, Wadalba
Updates for 120 Jensen Road, Wadalba
Location & Map for 120 Jensen Road, Wadalba
Visit Display Homes near 120 Jensen Road, Wadalba
Vacancy Rate in Wadalba NSW 2259
View full vacancy rate history in Wadalba NSW 2259 via SQM Research.
Schools near 120 Jensen Road, Wadalba
Here are 6 schools near 120 Jensen Road, Wadalba:
K-6 Government Primary School
K-12 Government Combined School
U Government Special School
K-6 Government Primary School
K-6 Government Primary School
K-6 Government Primary School
Reviews & Comments on 120 Jensen Road, Wadalba
Estate Brochure, Masterplan, Engineering Plan, Plan of Subdivision (POS), Design Guidelines
FAQs about 120 Jensen Road, Wadalba
- Tacoma Public School - 894m south-west
- Wadalba Community School - 1.3km north
- HopeTown School - 1.6km west
- Tuggerawong Public School - 2.0km east
- Kanwal Public School - 2.4km north-east
- Warnervale Public School - 2.8km north
Popular Estates near 120 Jensen Road, Wadalba
Latest New Home Articles for You
19/Aug/2025 | OpenLot.com.au
🏡 Suburb Profile: Beveridge
19/Aug/2025 | OpenLot.com.au
test
19/Aug/2025 | OpenLot.com.au
tests
13/Jun/2025 | OpenLot.com.au
Display Homes at Playford Alive Estate: A Thriving Community at the Heart of Munno Para
Welcome to Playford Alive, a vibrant and dynamic masterplanned community ...
11/Jun/2025 | OpenLot.com.au
Display Homes at Ocean Hill Estate: A Thriving Community by the Coast
A short stroll from the white sands of Madora Beach and fringed by the co...
10/Jun/2025 | OpenLot.com.au
Display Homes at Bluestone Estate: An Established Community in the Mount Barker
Whether you’re a first home buyer, a growing family, or looking to downsi...
09/Jun/2025 | OpenLot.com.au
Queensland Leads, But NSW and VIC Fall Behind, in New Housing Buyer Demand Index
New data reveals that Australia’s new housing market remains resilient de...
06/Jun/2025 | OpenLot.com.au
Display Homes at Minters Fields Estate: A Scenic Hillside Community in Mount Barker
Nestled in the heart of Mount Barker, Minters Fields offers a truly remar...
03/Jun/2025 | OpenLot.com.au
🏡 Step Inside a Frenken Home at Smiths Lane
During a recent visit to the Smiths Lane display village, OpenLot.com.au ...









