210-214 Chambers Flat Road, Waterford West QLD 4133 IN PLANNING
This information is estimated by the OpenLot research team. Let us know here to provide up-to-date information about this development.
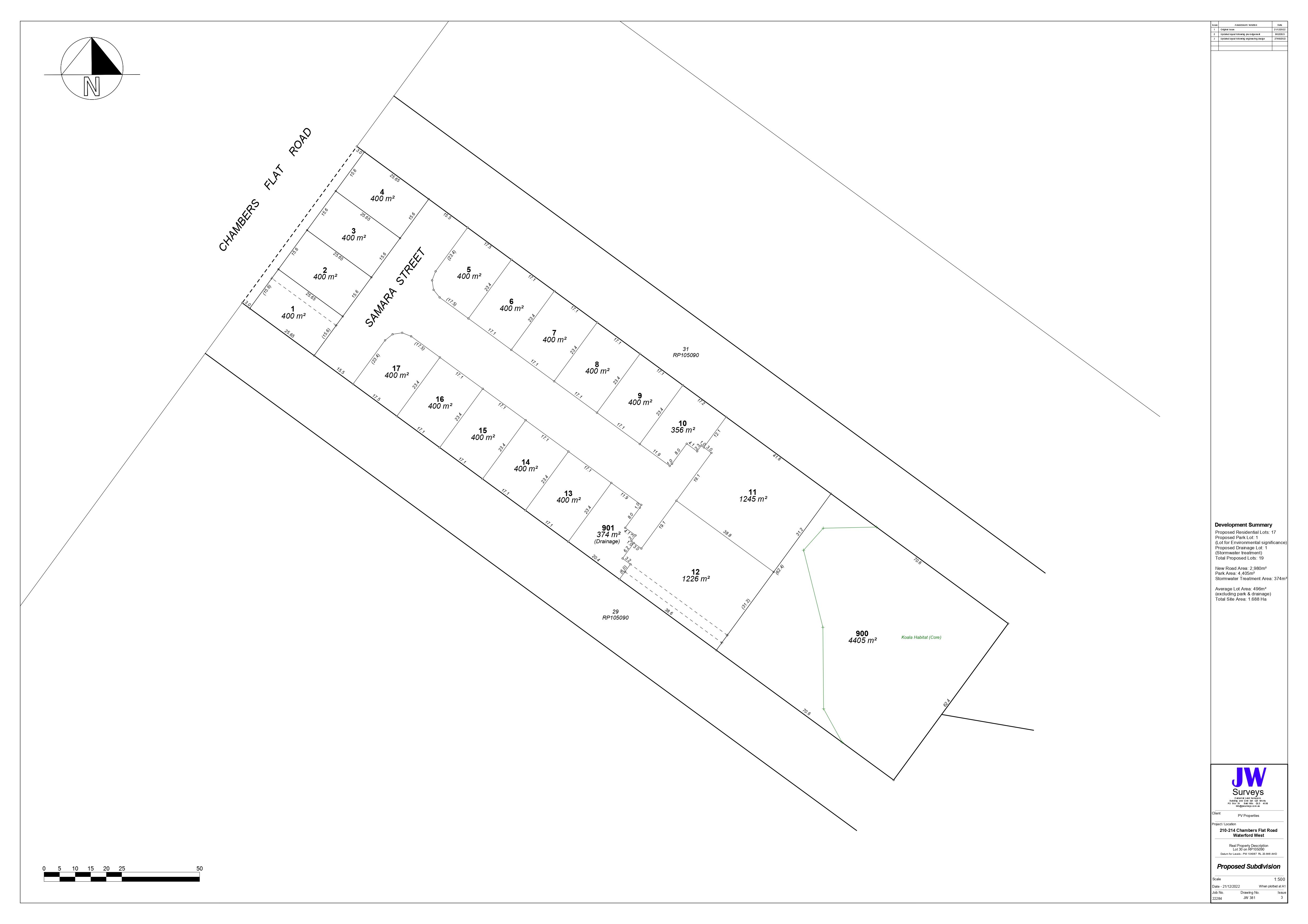
| Total new homes | 17 |
| Area size | 1.62 hectares |
| Growth Region | Greater Brisbane Growth Areas |
| City council | Logan City Council |
| Developer | N/A |
| Distance to | Brisbane CBD - 26 km south Brisbane Airport - 33 km south Gold Coast CBD - 46 km north-west |
Land for Sale, House and Land Packages:
Popular Estates near 210-214 Chambers Flat Road, Waterford West
Updates for 210-214 Chambers Flat Road, Waterford West
Location & Map for 210-214 Chambers Flat Road, Waterford West
Visit Display Homes near 210-214 Chambers Flat Road, Waterford West
Vacancy Rate in Waterford West QLD 4133
View full vacancy rate history in Waterford West QLD 4133 via SQM Research.
Schools near 210-214 Chambers Flat Road, Waterford West
Here are 6 schools near 210-214 Chambers Flat Road, Waterford West:
Prep-6 Government Primary School
7-12 Government Secondary School
Prep-6 Government Primary School
Prep-6 Government Primary School
Prep-12 Catholic Combined School
7-12 Catholic Special School
Reviews & Comments on 210-214 Chambers Flat Road, Waterford West
Estate Brochure, Masterplan, Engineering Plan, Plan of Subdivision (POS), Design Guidelines
FAQs about 210-214 Chambers Flat Road, Waterford West
- Marsden State School - 703m north
- Marsden State High School - 879m north-east
- Crestmead State School - 1.5km west
- Burrowes State School - 2.2km north-west
- St Francis College - 2.2km west
- The Centre Education Programme - 2.6km north
Popular Estates near 210-214 Chambers Flat Road, Waterford West
Latest New Home Articles for You
19/Aug/2025 | OpenLot.com.au
🏡 Suburb Profile: Beveridge
19/Aug/2025 | OpenLot.com.au
test
19/Aug/2025 | OpenLot.com.au
tests
13/Jun/2025 | OpenLot.com.au
Display Homes at Playford Alive Estate: A Thriving Community at the Heart of Munno Para
Welcome to Playford Alive, a vibrant and dynamic masterplanned community ...
11/Jun/2025 | OpenLot.com.au
Display Homes at Ocean Hill Estate: A Thriving Community by the Coast
A short stroll from the white sands of Madora Beach and fringed by the co...
10/Jun/2025 | OpenLot.com.au
Display Homes at Bluestone Estate: An Established Community in the Mount Barker
Whether you’re a first home buyer, a growing family, or looking to downsi...
09/Jun/2025 | OpenLot.com.au
Queensland Leads, But NSW and VIC Fall Behind, in New Housing Buyer Demand Index
New data reveals that Australia’s new housing market remains resilient de...
06/Jun/2025 | OpenLot.com.au
Display Homes at Minters Fields Estate: A Scenic Hillside Community in Mount Barker
Nestled in the heart of Mount Barker, Minters Fields offers a truly remar...
03/Jun/2025 | OpenLot.com.au
🏡 Step Inside a Frenken Home at Smiths Lane
During a recent visit to the Smiths Lane display village, OpenLot.com.au ...











