30799 Brand Highway, Bonniefield WA 6525 IN PLANNING
This information is estimated by the OpenLot research team. Let us know here to provide up-to-date information about this development.
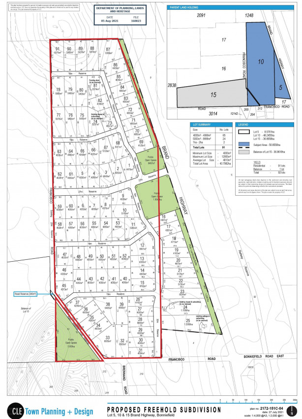
| Total new homes | 81 |
| Area size | 48.22 hectares |
| City council | Shire of Irwin |
| Developer | N/A |
Land for Sale, House and Land Packages:
Popular Estates near 30799 Brand Highway, Bonniefield
Updates for 30799 Brand Highway, Bonniefield
Location & Map for 30799 Brand Highway, Bonniefield
Vacancy Rate in Bonniefield WA 6525
View full vacancy rate history in Bonniefield WA 6525 via SQM Research.
Schools near 30799 Brand Highway, Bonniefield
Here are 6 schools near 30799 Brand Highway, Bonniefield:
K-12 Government Combined School
K-6 Government Primary School
K-6 Government Primary School
K-6 Government Primary School
K-6 Government Primary School
7-12 Government Secondary School
Reviews & Comments on 30799 Brand Highway, Bonniefield
Estate Brochure, Masterplan, Engineering Plan, Plan of Subdivision (POS), Design Guidelines
FAQs about 30799 Brand Highway, Bonniefield
- Dongara District High School - 3.3km south
- Walkaway Primary School - 33.5km north
- Mingenew Primary School - 50.1km east
- Wandina Primary School - 53.0km north-west
- Mount Tarcoola Primary School - 54.8km north-west
- Champion Bay Senior High School - 55.2km north-west
Popular Estates near 30799 Brand Highway, Bonniefield
Latest New Home Articles for You
19/Aug/2025 | OpenLot.com.au
🏡 Suburb Profile: Beveridge
19/Aug/2025 | OpenLot.com.au
test
19/Aug/2025 | OpenLot.com.au
tests
13/Jun/2025 | OpenLot.com.au
Display Homes at Playford Alive Estate: A Thriving Community at the Heart of Munno Para
Welcome to Playford Alive, a vibrant and dynamic masterplanned community ...
11/Jun/2025 | OpenLot.com.au
Display Homes at Ocean Hill Estate: A Thriving Community by the Coast
A short stroll from the white sands of Madora Beach and fringed by the co...
10/Jun/2025 | OpenLot.com.au
Display Homes at Bluestone Estate: An Established Community in the Mount Barker
Whether you’re a first home buyer, a growing family, or looking to downsi...
09/Jun/2025 | OpenLot.com.au
Queensland Leads, But NSW and VIC Fall Behind, in New Housing Buyer Demand Index
New data reveals that Australia’s new housing market remains resilient de...
06/Jun/2025 | OpenLot.com.au
Display Homes at Minters Fields Estate: A Scenic Hillside Community in Mount Barker
Nestled in the heart of Mount Barker, Minters Fields offers a truly remar...
03/Jun/2025 | OpenLot.com.au
🏡 Step Inside a Frenken Home at Smiths Lane
During a recent visit to the Smiths Lane display village, OpenLot.com.au ...








