68 Woodcarver Street, Rochedale QLD 4123 IN PLANNING
This information is estimated by the OpenLot research team. Let us know here to provide up-to-date information about this development.
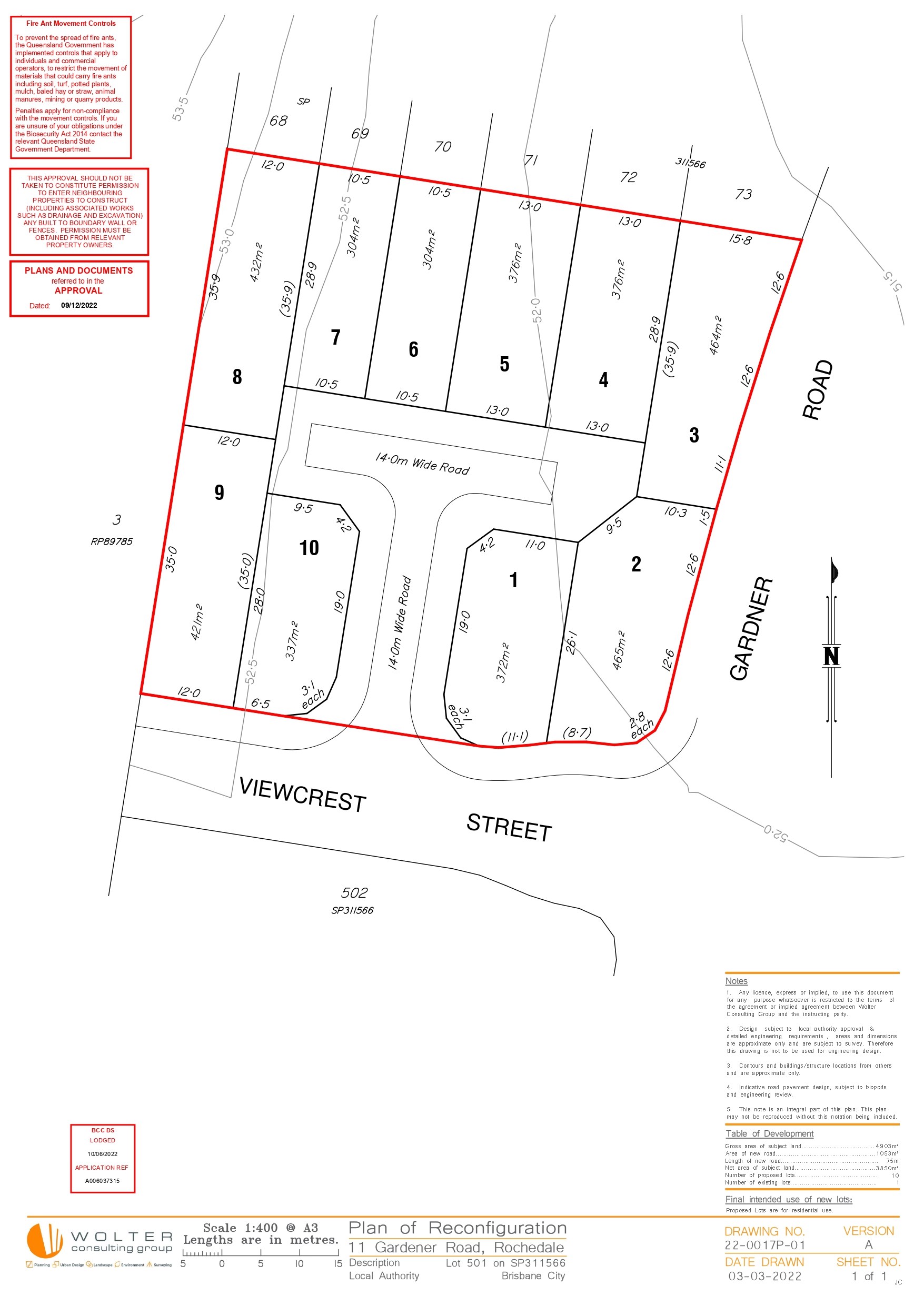
| Total new homes | 10 |
| Area size | 0.49 hectares |
| Growth Region | Greater Brisbane Growth Areas |
| City council | Brisbane City Council |
| Developer | N/A |
| Distance to | Brisbane CBD - 15 km south-east Brisbane Airport - 21 km south Gold Coast CBD - 56 km north-west |
Land for Sale, House and Land Packages:
Popular Estates near 68 Woodcarver Street, Rochedale
Updates for 68 Woodcarver Street, Rochedale
Location & Map for 68 Woodcarver Street, Rochedale
Visit Display Homes near 68 Woodcarver Street, Rochedale
Vacancy Rate in Rochedale QLD 4123
View full vacancy rate history in Rochedale QLD 4123 via SQM Research.
Schools near 68 Woodcarver Street, Rochedale
Here are 6 schools near 68 Woodcarver Street, Rochedale:
7-12 Government Secondary School
Prep-6 Government Primary School
Prep-12 Independent Combined School
Prep-6 Catholic Primary School
Prep-6 Government Primary School
Prep-6 Government Primary School
Reviews & Comments on 68 Woodcarver Street, Rochedale
Estate Brochure, Masterplan, Engineering Plan, Plan of Subdivision (POS), Design Guidelines
FAQs about 68 Woodcarver Street, Rochedale
- Rochedale State High School - 171m south
- Eight Mile Plains State School - 1.0km south
- Redeemer Lutheran College - 1.2km east
- St Peter's Primary School - 1.4km south-east
- Rochedale State School - 1.5km east
- Rochedale South State School - 2.0km east
Popular Estates near 68 Woodcarver Street, Rochedale
Latest New Home Articles for You
19/Aug/2025 | OpenLot.com.au
🏡 Suburb Profile: Beveridge
19/Aug/2025 | OpenLot.com.au
test
19/Aug/2025 | OpenLot.com.au
tests
13/Jun/2025 | OpenLot.com.au
Display Homes at Playford Alive Estate: A Thriving Community at the Heart of Munno Para
Welcome to Playford Alive, a vibrant and dynamic masterplanned community ...
11/Jun/2025 | OpenLot.com.au
Display Homes at Ocean Hill Estate: A Thriving Community by the Coast
A short stroll from the white sands of Madora Beach and fringed by the co...
10/Jun/2025 | OpenLot.com.au
Display Homes at Bluestone Estate: An Established Community in the Mount Barker
Whether you’re a first home buyer, a growing family, or looking to downsi...
09/Jun/2025 | OpenLot.com.au
Queensland Leads, But NSW and VIC Fall Behind, in New Housing Buyer Demand Index
New data reveals that Australia’s new housing market remains resilient de...
06/Jun/2025 | OpenLot.com.au
Display Homes at Minters Fields Estate: A Scenic Hillside Community in Mount Barker
Nestled in the heart of Mount Barker, Minters Fields offers a truly remar...
03/Jun/2025 | OpenLot.com.au
🏡 Step Inside a Frenken Home at Smiths Lane
During a recent visit to the Smiths Lane display village, OpenLot.com.au ...











