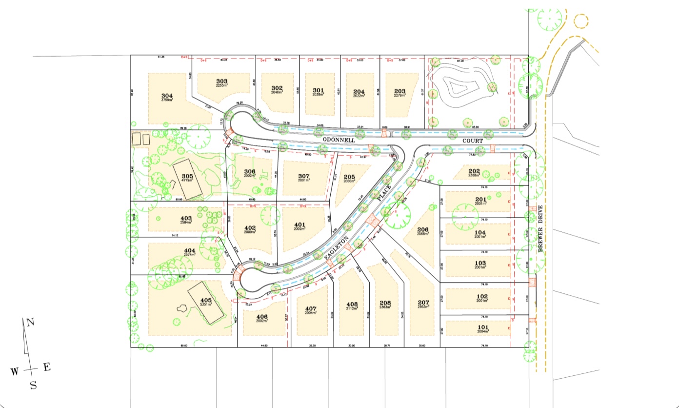
83-85 Brewer Drive, West Wodonga VIC 3690
This information is estimated by the OpenLot research team. Let us know here to provide up-to-date information about this development.
| Total new homes | 27 |
| Area size | 8.11 hectares |
| City council | City Of Wodonga |
| Developer | N/A |
| Project marketer | Harper Property Group |
| Distance to | Albury CBD - 8 km south-west |
Land for Sale, House and Land Packages:
Popular Estates near 83-85 Brewer Drive, West Wodonga
Updates for 83-85 Brewer Drive, West Wodonga
Location & Map for 83-85 Brewer Drive, West Wodonga
Land Price Trend in West Wodonga VIC 3690
- In Oct - Dec 24, the median price for vacant land in West Wodonga VIC 3690 was $317,500. *
- From Oct - Dec 17 to Oct - Dec 24, the median price for vacant land in West Wodonga VIC 3690 has increased 135.19%. *
- From 2008 to 2024, the median price for vacant land in West Wodonga VIC 3690 has increased 173.54%. *
Vacancy Rate in West Wodonga VIC 3690
View full vacancy rate history in West Wodonga VIC 3690 via SQM Research.
Schools near 83-85 Brewer Drive, West Wodonga
Here are 6 schools near 83-85 Brewer Drive, West Wodonga:
Prep-12 Independent Combined School
U Government Special School
Prep-6 Government Primary School
7-12 Catholic Secondary School
Prep-6 Catholic Primary School
Prep-6 Government Primary School
Reviews & Comments on 83-85 Brewer Drive, West Wodonga
Estate Brochure, Masterplan, Engineering Plan, Plan of Subdivision (POS), Design Guidelines
FAQs about 83-85 Brewer Drive, West Wodonga
View all estates marketed by Harper Property Group
- Victory Lutheran College - 1.2km east
- Belvoir Wodonga Special Developmental School - 2.2km south-east
- Melrose Primary School - 3.1km south-east
- Catholic College Wodonga - 3.1km south-east
- St Monica's School - 3.8km east
- Wodonga West Primary School - 4.0km east
Popular Estates near 83-85 Brewer Drive, West Wodonga
Latest New Home Articles for You
19/Aug/2025 | OpenLot.com.au
🏡 Suburb Profile: Beveridge
19/Aug/2025 | OpenLot.com.au
test
19/Aug/2025 | OpenLot.com.au
tests
13/Jun/2025 | OpenLot.com.au
Display Homes at Playford Alive Estate: A Thriving Community at the Heart of Munno Para
Welcome to Playford Alive, a vibrant and dynamic masterplanned community ...
11/Jun/2025 | OpenLot.com.au
Display Homes at Ocean Hill Estate: A Thriving Community by the Coast
A short stroll from the white sands of Madora Beach and fringed by the co...
10/Jun/2025 | OpenLot.com.au
Display Homes at Bluestone Estate: An Established Community in the Mount Barker
Whether you’re a first home buyer, a growing family, or looking to downsi...
09/Jun/2025 | OpenLot.com.au
Queensland Leads, But NSW and VIC Fall Behind, in New Housing Buyer Demand Index
New data reveals that Australia’s new housing market remains resilient de...
06/Jun/2025 | OpenLot.com.au
Display Homes at Minters Fields Estate: A Scenic Hillside Community in Mount Barker
Nestled in the heart of Mount Barker, Minters Fields offers a truly remar...
03/Jun/2025 | OpenLot.com.au
🏡 Step Inside a Frenken Home at Smiths Lane
During a recent visit to the Smiths Lane display village, OpenLot.com.au ...









