Allenby Gardens Townhomes - Allenby Gardens
This information is estimated by the OpenLot research team. Let us know here to provide up-to-date information about this development.
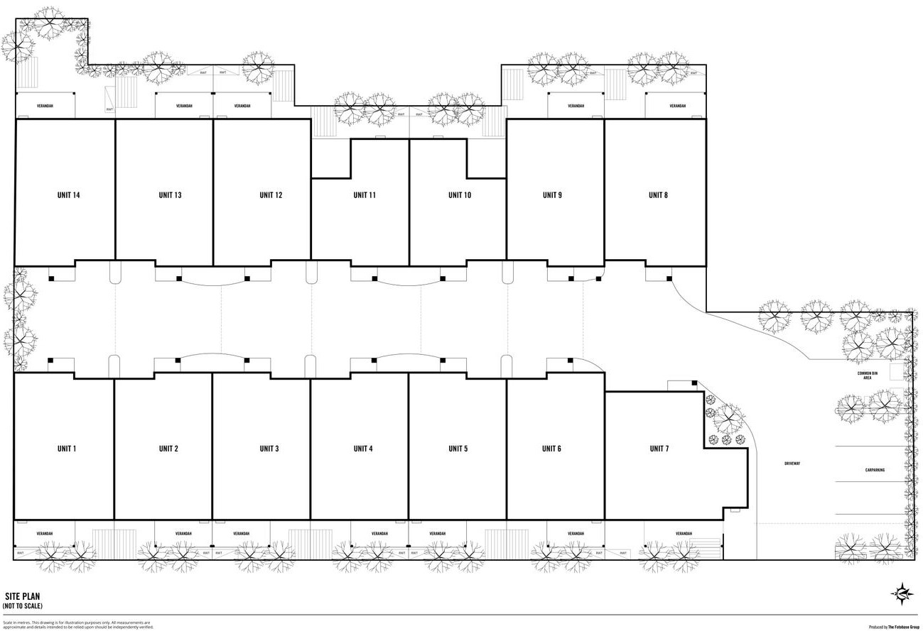
| Total new homes | 14 |
| Area size | 0.21 hectares |
| Growth Region | Adelaide North Growth Areas |
| City council | City of Charles Sturt |
| Developer | N/A |
| Project marketer | Harcourts St Peters |
| Distance to | Adelaide CBD - 4 km north-west Adelaide Airport - 5 km north-east |
Townhomes:
Popular Estates near Allenby Gardens Townhomes - Allenby Gardens
Updates for Allenby Gardens Townhomes - Allenby Gardens
Location & Map for Allenby Gardens Townhomes - Allenby Gardens
Vacancy Rate in Allenby Gardens SA 5009
View full vacancy rate history in Allenby Gardens SA 5009 via SQM Research.
Schools near Allenby Gardens Townhomes - Allenby Gardens
Here are 6 schools near Allenby Gardens Townhomes - Allenby Gardens:
R-6 Government Primary School
R-6 Catholic Primary School
U, R-6 Government Primary School
U, 11-12 Government Secondary School
R-12 Independent Combined School
U, R-6 Government Primary School
Reviews & Comments on Allenby Gardens Townhomes - Allenby Gardens
Estate Brochure, Masterplan, Engineering Plan, Plan of Subdivision (POS), Design Guidelines
FAQs about Allenby Gardens Townhomes - Allenby Gardens
View all estates marketed by Harcourts St Peters
- Allenby Gardens Primary School - 388m north-west
- St Joseph's School - 588m east
- Flinders Park Primary School - 974m south-west
- Thebarton Senior College - 1.5km south
- Australian Islamic College Adelaide - 1.6km north-east
- Torrensville Primary School - 1.6km south
Popular Estates near Allenby Gardens Townhomes - Allenby Gardens
Latest New Home Articles for You
19/Aug/2025 | OpenLot.com.au
🏡 Suburb Profile: Beveridge
19/Aug/2025 | OpenLot.com.au
test
19/Aug/2025 | OpenLot.com.au
tests
13/Jun/2025 | OpenLot.com.au
Display Homes at Playford Alive Estate: A Thriving Community at the Heart of Munno Para
Welcome to Playford Alive, a vibrant and dynamic masterplanned community ...
11/Jun/2025 | OpenLot.com.au
Display Homes at Ocean Hill Estate: A Thriving Community by the Coast
A short stroll from the white sands of Madora Beach and fringed by the co...
10/Jun/2025 | OpenLot.com.au
Display Homes at Bluestone Estate: An Established Community in the Mount Barker
Whether you’re a first home buyer, a growing family, or looking to downsi...
09/Jun/2025 | OpenLot.com.au
Queensland Leads, But NSW and VIC Fall Behind, in New Housing Buyer Demand Index
New data reveals that Australia’s new housing market remains resilient de...
06/Jun/2025 | OpenLot.com.au
Display Homes at Minters Fields Estate: A Scenic Hillside Community in Mount Barker
Nestled in the heart of Mount Barker, Minters Fields offers a truly remar...
03/Jun/2025 | OpenLot.com.au
🏡 Step Inside a Frenken Home at Smiths Lane
During a recent visit to the Smiths Lane display village, OpenLot.com.au ...


