Aquarevo Estate - Lyndhurst SOLD OUT
This information is estimated by the OpenLot research team. Let us know here to provide up-to-date information about this development.
| Total new homes | 450 |
| Area size | 42.00 hectares |
| Growth Region | Melbourne South East Growth Corridor |
| City council | Casey City Council |
| Developer | Villawood Properties |
| Creative agency | Vive Group |
| Distance to | Melbourne CBD - 38 km south-east |
Land for Sale, House and Land Packages:
Popular Estates near Aquarevo Estate - Lyndhurst
Updates for Aquarevo Estate - Lyndhurst
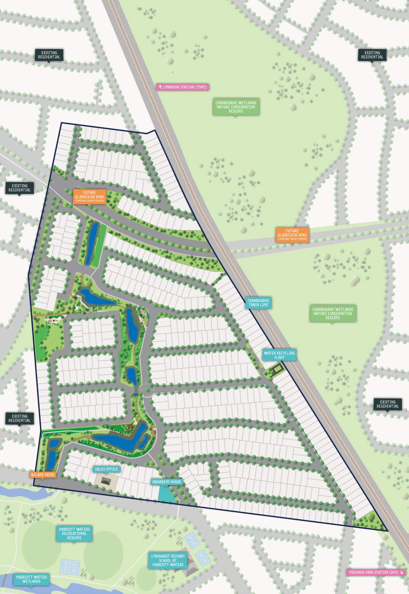
Location & Map for Aquarevo Estate - Lyndhurst
Visit Display Homes near Aquarevo Estate - Lyndhurst
Land Price Trend in Lyndhurst VIC 3975
- In Oct - Dec 24, the median price for vacant land in Lyndhurst VIC 3975 was $850,000. *
- From Oct - Dec 17 to Oct - Dec 24, the median price for vacant land in Lyndhurst VIC 3975 has increased 169.84%. *
- From 2008 to 2024, the median price for vacant land in Lyndhurst VIC 3975 has increased 267.75%. *
Vacancy Rate in Lyndhurst VIC 3975
View full vacancy rate history in Lyndhurst VIC 3975 via SQM Research.
Schools near Aquarevo Estate - Lyndhurst
Here are 6 schools near Aquarevo Estate - Lyndhurst:
Prep-6 Government Primary School
Prep-6 Catholic Primary School
Prep-6 Catholic Primary School
7-12 Government Secondary School
Prep-6 Government Primary School
Prep-6 Government Primary School
Reviews & Comments on Aquarevo Estate - Lyndhurst
Estate Brochure, Masterplan, Engineering Plan, Plan of Subdivision (POS), Design Guidelines
FAQs about Aquarevo Estate - Lyndhurst
View all estates from Villawood Properties
- Lyndhurst Primary School - 650m south
- St Francis De Sales Catholic Primary School - 1.3km north
- St Therese's School - 1.6km south-east
- Lyndhurst Secondary College - 1.8km east
- Lynbrook Primary School - 2.0km north
- Quarters Primary School - 2.8km south
Popular Estates near Aquarevo Estate - Lyndhurst
Latest New Home Articles for You
19/Aug/2025 | OpenLot.com.au
🏡 Suburb Profile: Beveridge
19/Aug/2025 | OpenLot.com.au
test
19/Aug/2025 | OpenLot.com.au
tests
13/Jun/2025 | OpenLot.com.au
Display Homes at Playford Alive Estate: A Thriving Community at the Heart of Munno Para
Welcome to Playford Alive, a vibrant and dynamic masterplanned community ...
11/Jun/2025 | OpenLot.com.au
Display Homes at Ocean Hill Estate: A Thriving Community by the Coast
A short stroll from the white sands of Madora Beach and fringed by the co...
10/Jun/2025 | OpenLot.com.au
Display Homes at Bluestone Estate: An Established Community in the Mount Barker
Whether you’re a first home buyer, a growing family, or looking to downsi...
09/Jun/2025 | OpenLot.com.au
Queensland Leads, But NSW and VIC Fall Behind, in New Housing Buyer Demand Index
New data reveals that Australia’s new housing market remains resilient de...
06/Jun/2025 | OpenLot.com.au
Display Homes at Minters Fields Estate: A Scenic Hillside Community in Mount Barker
Nestled in the heart of Mount Barker, Minters Fields offers a truly remar...
03/Jun/2025 | OpenLot.com.au
🏡 Step Inside a Frenken Home at Smiths Lane
During a recent visit to the Smiths Lane display village, OpenLot.com.au ...














