Brandy Creek Views Estate - Warragul 1 AVAILABLE
This information is estimated by the OpenLot research team. Let us know here to provide up-to-date information about this development.
| Total new homes | N/A |
| Area size | N/A |
| Growth Region | Gippsland Regional Growth Areas |
| City council | Baw Baw Shire Council |
| Developer | LandGipps |
| Distance to | Melbourne CBD - 92 km south-east |
Land for Sale, House and Land Packages:
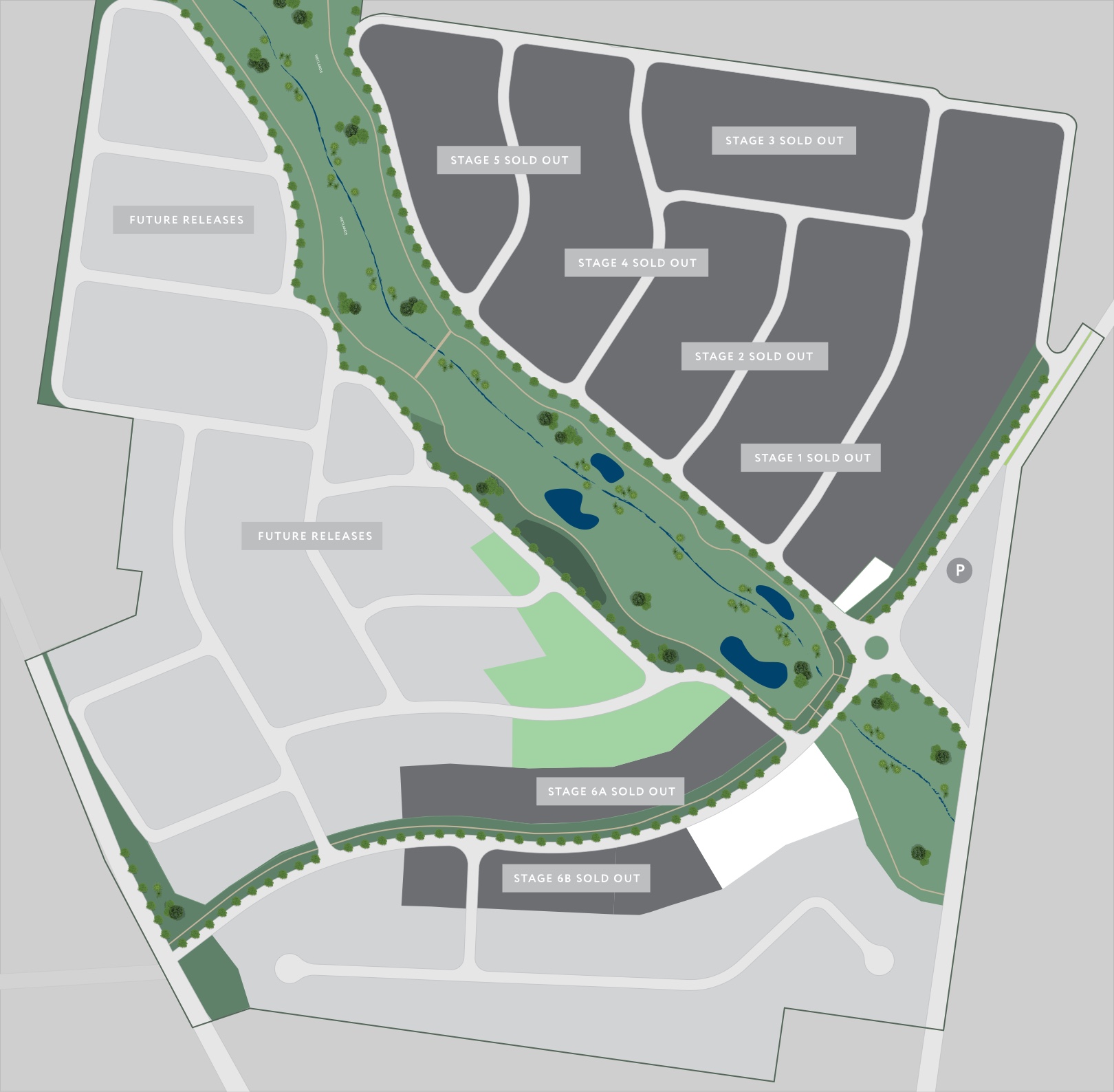
Land Lots in Brandy Creek Views Estate - Warragul
With 4 Hectares of beautifully designed wetlands, 9,000m² of neighbourhood parks and spectacular views to Mt Baw Baw, there is no better place to call home in Warragul.
With Stage 1-6 now sold out, here is the perfect opportunity to build your dream home, which has been designed for you to live the quiet life.
Brandy Creek Views is located in Warragul, a country town in Gippsland, 105km east of Melbourne.
With three major Supermarkets, Boutique Stores, Cafes and Restaurants, three Primary Schools and three Secondary Schools, a Hospital and Sporting Facilities, Warragul has all you need to make it home.
See www.landgipps.com.au or www.brandycreekviews.com.au for more details and lots available.
Popular Estates near Brandy Creek Views Estate - Warragul
Updates for Brandy Creek Views Estate - Warragul
Location & Map for Brandy Creek Views Estate - Warragul
Visit Display Homes near Brandy Creek Views Estate - Warragul
Land Price Trend in Warragul VIC 3820
- In Oct - Dec 24, the median price for vacant land in Warragul VIC 3820 was $316,700. *
- From Oct - Dec 17 to Oct - Dec 24, the median price for vacant land in Warragul VIC 3820 has increased 85.2%. *
- From 2008 to 2024, the median price for vacant land in Warragul VIC 3820 has increased 240.54%. *
Vacancy Rate in Warragul VIC 3820
View full vacancy rate history in Warragul VIC 3820 via SQM Research.
Schools near Brandy Creek Views Estate - Warragul
Here are 6 schools near Brandy Creek Views Estate - Warragul:
Prep-12 Independent Combined School - School Head Campus
Prep-6 Government Primary School
Prep-6 Catholic Primary School
Prep-6 Government Primary School
Prep-6 Government Primary School
7-12 Catholic Secondary School
Reviews & Comments on Brandy Creek Views Estate - Warragul
Estate Brochure, Masterplan, Engineering Plan, Plan of Subdivision (POS), Design Guidelines
FAQs about Brandy Creek Views Estate - Warragul
View all estates from LandGipps
- St Paul's Anglican Grammar School - 2.1km south
- Warragul North Primary School - 2.2km south
- St Angela of the Cross Primary School - 2.9km south-east
- Warragul Primary School - 3.0km south
- Buln Buln Primary School - 3.4km north
- Marist-Sion College - 3.7km south-west
Popular Estates near Brandy Creek Views Estate - Warragul
Latest New Home Articles for You
19/Aug/2025 | OpenLot.com.au
🏡 Suburb Profile: Beveridge
19/Aug/2025 | OpenLot.com.au
test
19/Aug/2025 | OpenLot.com.au
tests
13/Jun/2025 | OpenLot.com.au
Display Homes at Playford Alive Estate: A Thriving Community at the Heart of Munno Para
Welcome to Playford Alive, a vibrant and dynamic masterplanned community ...
11/Jun/2025 | OpenLot.com.au
Display Homes at Ocean Hill Estate: A Thriving Community by the Coast
A short stroll from the white sands of Madora Beach and fringed by the co...
10/Jun/2025 | OpenLot.com.au
Display Homes at Bluestone Estate: An Established Community in the Mount Barker
Whether you’re a first home buyer, a growing family, or looking to downsi...
09/Jun/2025 | OpenLot.com.au
Queensland Leads, But NSW and VIC Fall Behind, in New Housing Buyer Demand Index
New data reveals that Australia’s new housing market remains resilient de...
06/Jun/2025 | OpenLot.com.au
Display Homes at Minters Fields Estate: A Scenic Hillside Community in Mount Barker
Nestled in the heart of Mount Barker, Minters Fields offers a truly remar...
03/Jun/2025 | OpenLot.com.au
🏡 Step Inside a Frenken Home at Smiths Lane
During a recent visit to the Smiths Lane display village, OpenLot.com.au ...
















