Astra by Allcastle Homes

DISPLAY HOME

Aspire to next level luxury living

This is affordable luxury everyone can aspire to.

With its bold exterior palette the Astra 31.5 makes a spectacular first impression.

The designer drama continues inside, as you’re greeted by a vast expanse of light from the front entry all the way to the rear alfresco glass doors.  

Contemporary indoor/outdoor living lies at the heart of the home, with a massive open plan space overlooking the alfresco entertaining area – perfect for bringing family and friends together. Private time can be relished in the sitting rooms situated on both levels, while working and studying from home is a breeze in the separate study and optional home library.

 


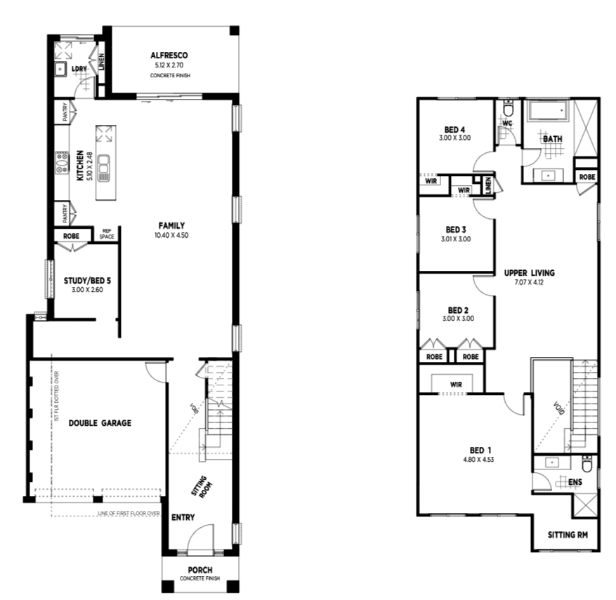
Floor-plan options for Astra

Astra 31.5
Bed 5
Bath 3
Living 3
Car 2
Home Design: Astra
Floor Area: 293.00m2
House Width: 8.54m
House Length: 21.32m

Display Homes & 3D Tours for Astra by Allcastle Homes

Loading...