Corner Leda by Allcastle Homes

DISPLAY HOME

Embrace the dream life

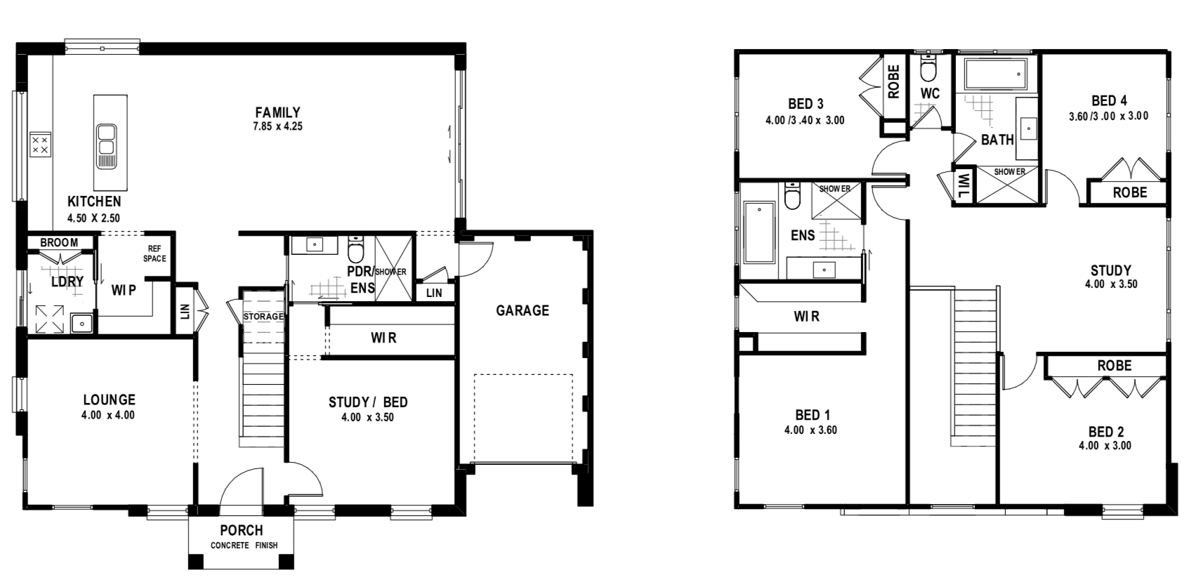
The Corner Leda MKIV, a modern duplex, ideal for corner blocks. Embrace this exquisite duplex, where every detail is meticulously designed to enhance your living experience. As you approach, the double garage beckons, seamlessly connected to the family room for effortless access. A covered porch welcomes you, adorned with a glass balustraded balcony above, offering a delightful space to unwind and enjoy the outdoors.

Step inside to discover the ground floor's impressive layout, featuring a lounge area for intimate gatherings, a versatile study or 5th bedroom complete with a walk-in robe, and a convenient powder room with a shower. The heart of the home unfolds into a spacious kitchen, meticulously crafted with functionality and style in mind, seamlessly merging into the family room. A walk-in pantry ensures ample storage, and a wine rack for added convenience. Adjacent to this culinary haven is an attached alfresco dining area, perfect for alfresco meals and entertaining guests in style.

Ascend the staircase to the upper level, where luxury awaits. The master bedroom exudes opulence, boasting a generous walk-in robe and an ensuite designed for indulgence. The main bathroom is a sanctuary in itself, featuring a free-standing bath for moments of relaxation. Three additional bedrooms, each adorned with built-in robes, offer comfort and privacy for the entire family. Completing this level is a spacious study or teenage retreat, providing a versatile space to work, study, or unwind.
 


Floor-plan options for Corner Leda

Corner Leda MKIV
Bed 5
Bath 3
Living 3
Car 2
Home Design: Corner Leda
Floor Area: 251.80m2
House Width: 13.82m
House Length: 12.62m

Display Homes & 3D Tours for Corner Leda by Allcastle Homes

Loading...