Crest by Allcastle Homes
DISPLAY HOME
Live the dream in resort style
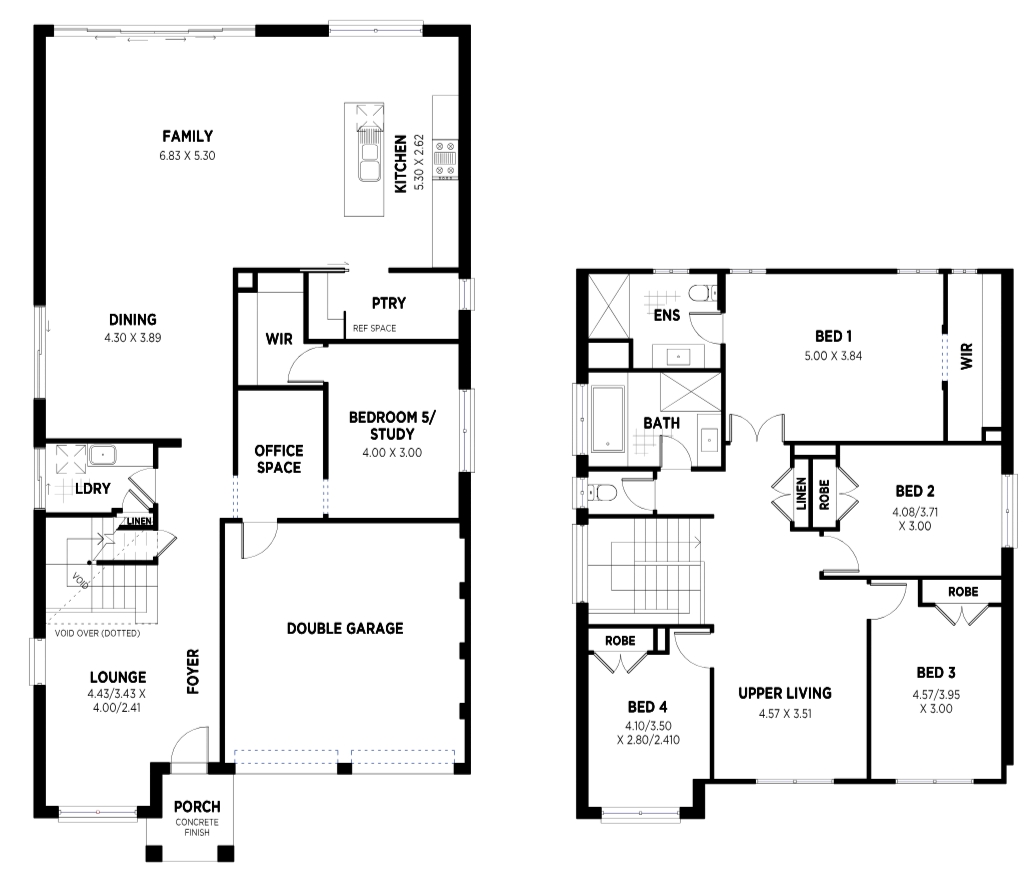
Perfect for larger families, the Crest offers 32 squares of expansive, open plan, contemporary living. A designer kitchen with huge walk-in pantry overlooks the massive family room/dining space which can accommodate plenty of family and friends. A separate home office, lounge and 5th bedroom/study gives you private space to relax and retreat.
Display Homes & 3D Tours for Crest by Allcastle Homes
Loading...

5