Bowery by Ansa Homes
DISPLAY HOME
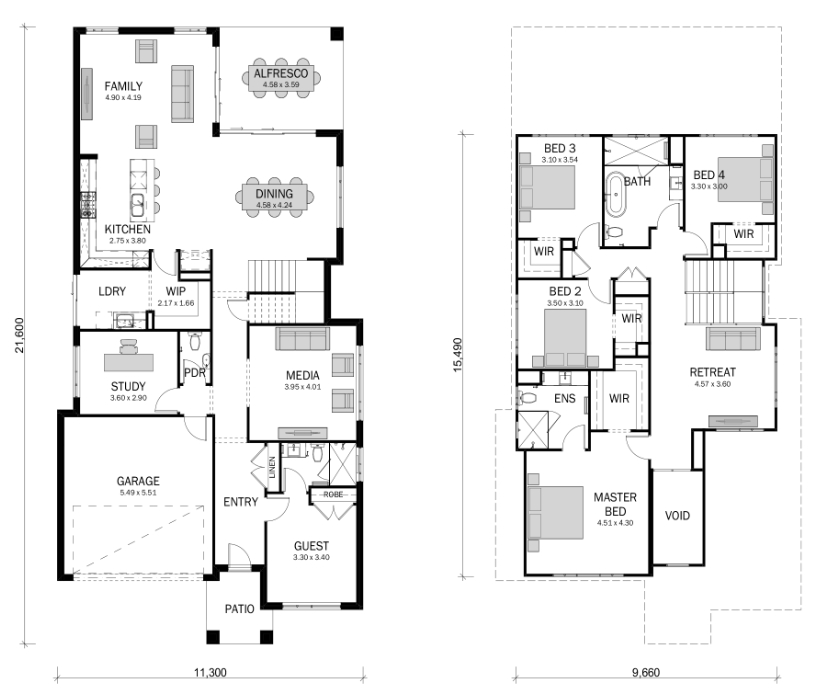
The Bowery by ANSA Homes delivers the best modern aesthetic of new home design. With a sophisticated materials palette of brick, timber and render in a stylishly neutral earthy colour range. The strong square angles of the front frame the facade for an avant-garde home that will be the stand out in any street.
Display Homes & 3D Tours for Bowery by Ansa Homes
Loading...

5