Seabrook by Ansa Homes
DISPLAY HOME
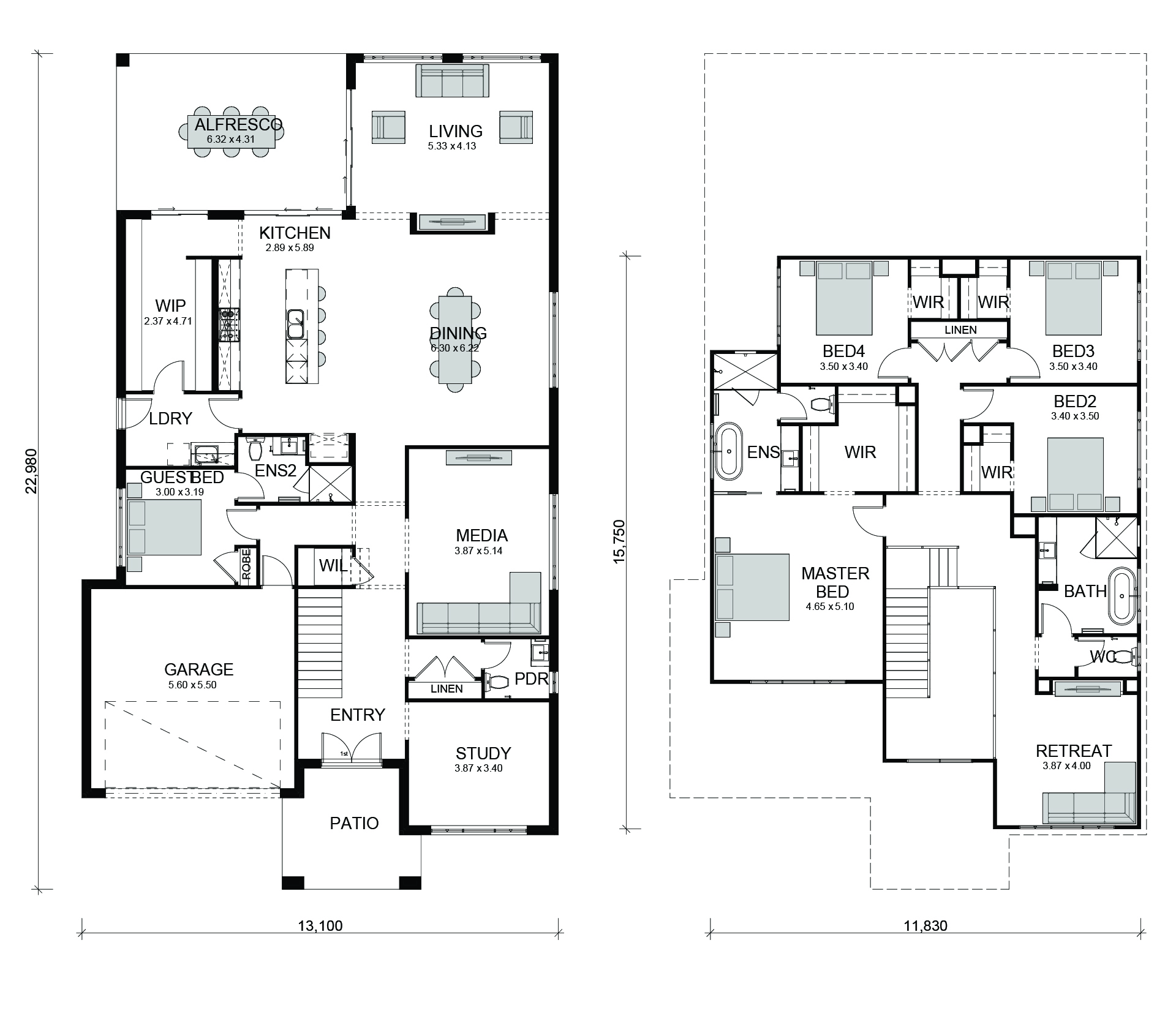
The gabled roofline, batten and board detail define the coastal Hamptons style of the award-winning Seabrook. Demonstrating a refined balance between sophistication, relaxation and indulgent luxury; this home will fit all your family’s needs now and into the future.
Display Homes & 3D Tours for Seabrook by Ansa Homes
Loading...

5