Georgina by Arista Homes
DISPLAY HOME
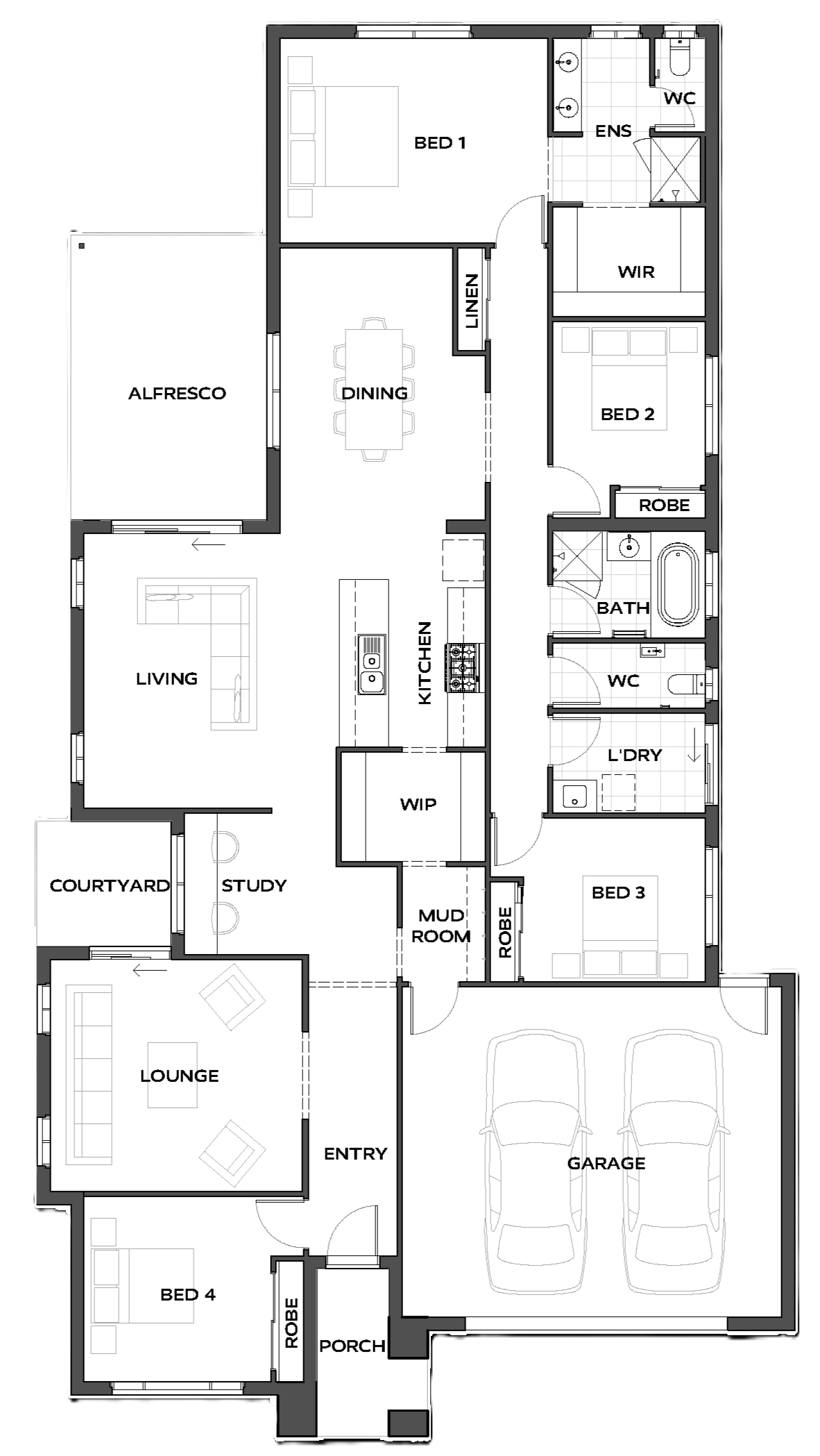
Designed to suit your growing Family
Space is at the heart of the Georgina 292, featuring four large bedrooms, plus a separate lounge and private courtyard, offering every member of your family a place to unwind. The generous master suite is complete with a large ensuite and luxurious walk-in-robe. The home also boasts an additional three bedrooms, all with built-in-robes and a study nook. An island bench and butlers pantry are key features of the spacious open-plan kitchen which overlooks a casual living area, dining room and alfresco. The double car garage features a mudroom, with direct access to the butlers pantry. The Georgina has been designed to suit your growing family.
Display Homes & 3D Tours for Georgina by Arista Homes
Loading...

4