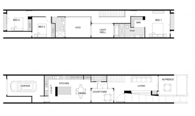
DISPLAY HOMEHyde | @ Stockland Aura Sunshine Coast - Banya Home Designs by Ausmar Homes Hyde by Ausmar Homes HOME DESIGN Floor-plan options for Hyde Hyde 3 2 1 1 Builder: Ausmar Homes Home Design: Hyde Floor Area: 202.69m2 House Width: 4.55m House Length: 26.84m Display Homes & 3D Tours for Hyde by Ausmar Homes Loading... Hyde By Ausmar Homes Stockland Aura Sunshine Coast - Banya Stockland Aura Sunshine Coast - Banya