Avalon by Bellriver Homes
DISPLAY HOME
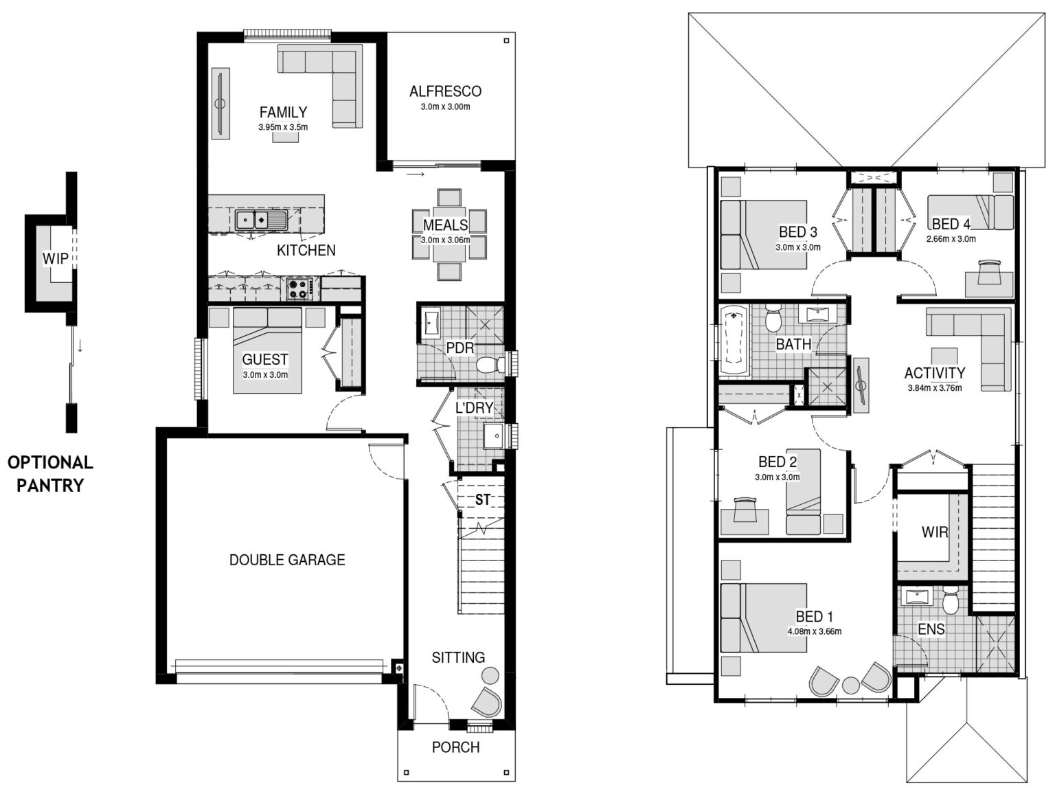
The Avalon Collection has been masterfully designed to create a spacious large style home, on a 10m wide allotment.
The designs feature a double garage, large open living areas, flowing alfresco and the option of a front balcony.
This plan set is a triumph to our acclaimed architect- maximizing every square meter and providing spacious homes while maintaining large rear yards – on a minimum of land area. All 9 designs can be mirror reversed to suit the aspect of your land.
Note: These designs are not allowed in some council areas.
Display Homes & 3D Tours for Avalon by Bellriver Homes
Loading...
More House and Land Packages by Bellriver Homes (Home Builder)

[Stockland The Gables] Precinct F - Stage 1: Lot 5012 Lilyview: Mornington 40 Available
5
3
2Suburb: Gables NSW 2765
Builder:
Land Size: 701.00m²
Floor Area: 368.5sq
$30k* Open Doors Sale~ Limited Time Only!
These homes are wide fronted, handsome and full of interesting and functional features. They boast extra-large kitchens with walk-in pantries, study areas, separate toilets and vanity areas. They have functional meals, living, activity and media spaces easily flowing through large stackers onto the outdoor alfresco.
Price: $1,969,000 *
