Bronte by Bellriver Homes
DISPLAY HOME
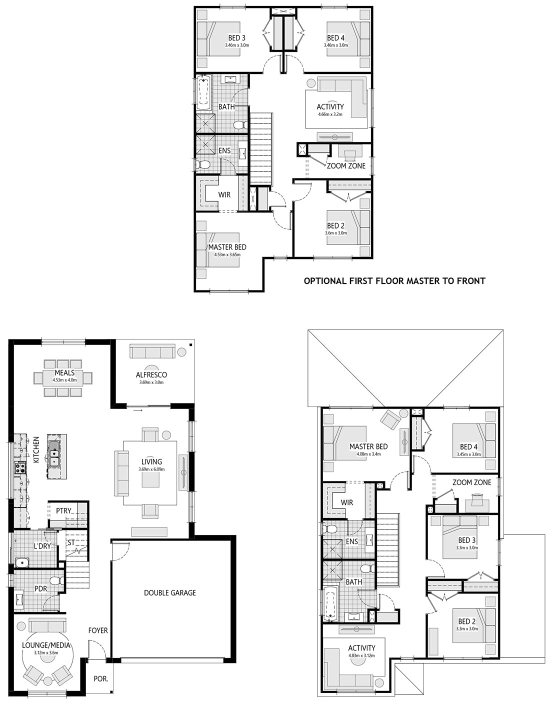
Exciting double storey designs to suit 12.5m wide allotments
This collection includes designs for zero side boundary allotments or standard boundary setbacks. They vary greatly from affordable family homes through to some of our architects most innovative pavilion style designs.
Most feature a downstairs guest suite and 4 upstairs bedrooms, and one even features a full attached extra generational “granny flat” style separated quarters. The Bronte is one of our most interesting and popular collections.
Display Homes & 3D Tours for Bronte by Bellriver Homes
Loading...
More House and Land Packages by Bellriver Homes (Home Builder)

[Stockland The Gables] Precinct F - Stage 1: Lot 5012 Lilyview: Mornington 40 Available
5
3
2Suburb: Gables NSW 2765
Builder:
Land Size: 701.00m²
Floor Area: 368.5sq
$30k* Open Doors Sale~ Limited Time Only!
These homes are wide fronted, handsome and full of interesting and functional features. They boast extra-large kitchens with walk-in pantries, study areas, separate toilets and vanity areas. They have functional meals, living, activity and media spaces easily flowing through large stackers onto the outdoor alfresco.
Price: $1,969,000 *
