Benson by Bold Living

DISPLAY HOME

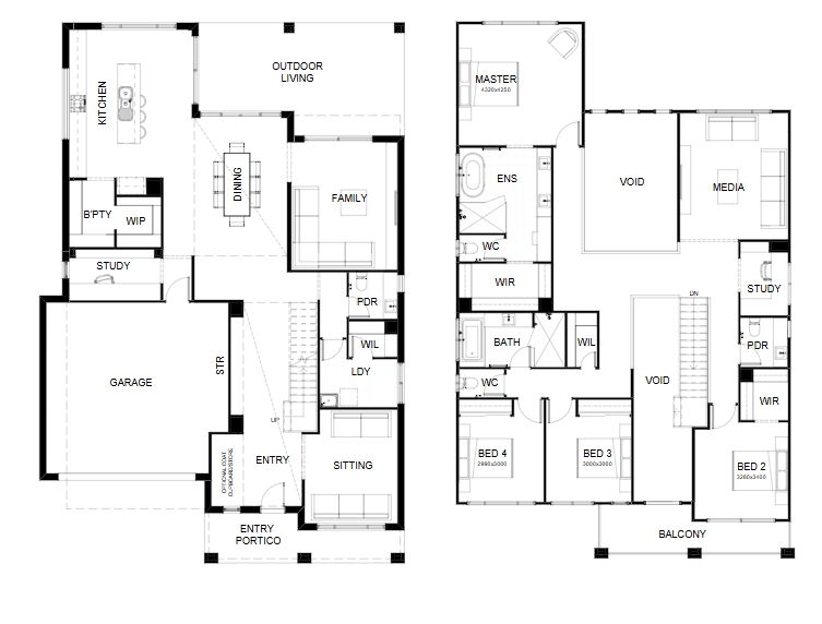
Feast your eyes on this modern masterpiece, with all the style and space you’ll ever need. With four bedrooms, three living areas, an impressively large kitchen with butler’s pantry, two very flexible study areas, a media room and a separate private sitting room there’s no end to the possibilities!  The feeling is open and airy, enhanced by the design’s large void and the extra large outdoor living area.  


Floor-plan options for Benson

Benson 405
Bed 4
Bath 4
Living 3
Car 2
Builder: Bold Living
Home Design: Benson
Floor Area: 405.6m2
House Width: 12.8m
House Length: 18.96m

Display Homes & 3D Tours for Benson by Bold Living

Loading...

More House and Land Packages by Bold Living (Home Builder)