Sorrento by Bold Living

DISPLAY HOME

Inspired by calm and soothing coastal living, this home design is like no other. Suited perfectly for a bayside lifestyle, this residence is an entertainer’s delight, boasting seamless integration between indoor and outdoor living. Upon entering through the oversized entry door, you’ll be greeted with light filled voids, relaxing sitting room, fifth bedroom with private ensuite and study space.


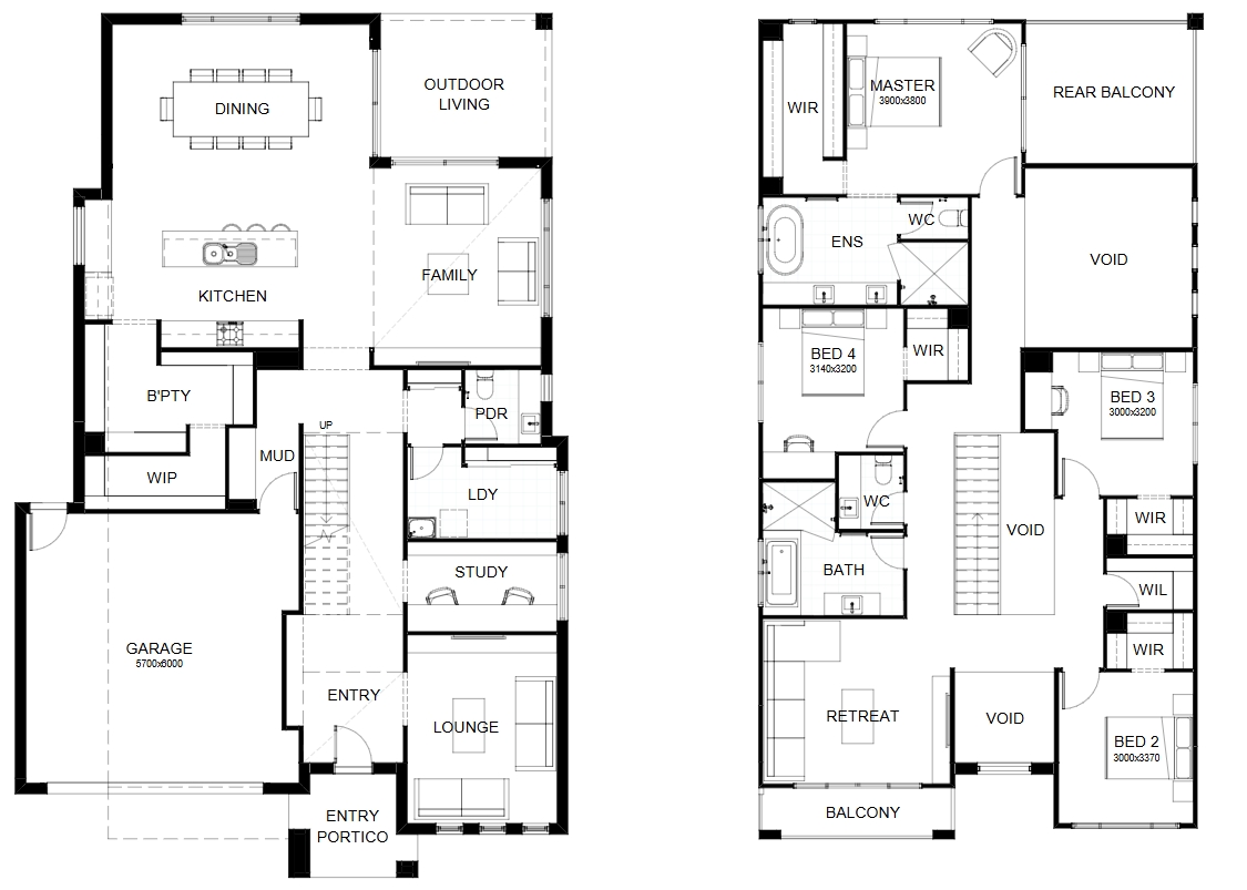
Floor-plan options for Sorrento

Sorrento 375
Bed 4
Bath 3
Living 2.5
Car 2
Builder: Bold Living
Home Design: Sorrento
Floor Area: 375.6m2
House Width: 12.3m
House Length: 19.23m
Sorrento 499
Bed 5
Bath 4
Living 3
Car 2
Builder: Bold Living
Home Design: Sorrento
Floor Area: 499.0m2
House Width: 13.9m
House Length: 22.71m

Display Homes & 3D Tours for Sorrento by Bold Living

Loading...

More House and Land Packages by Bold Living (Home Builder)