
Montana by Boutique Homes
Offering a contemporary take on country-style living, the Montana stylishly combines elements of rural warmth with today’s modern musts.
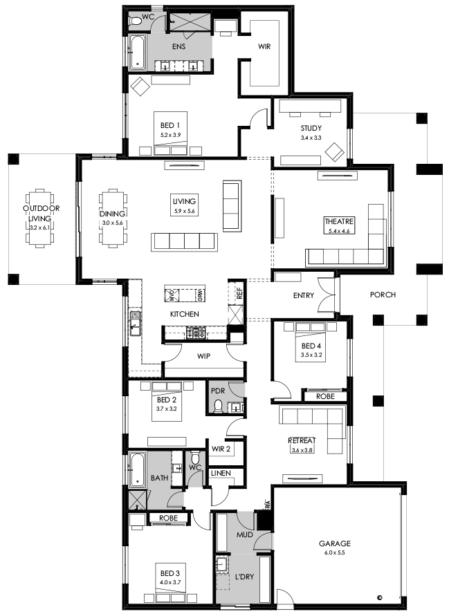
A wide frontage creates a warm welcome and gives this single-level home charming street presence.
Bright and airy spaces are part of its liveable and relaxed appeal, as well as a design focus on comfort and character.
The open-plan lounge and dining area forms a central living space that brings everyone together, while an adjoining dual-entry theatre room offers another place to unwind.
A farmhouse-style kitchen overlooks the main family living area and is within easy reach of the alfresco zone, where expansive glass sliding doors provide seamless connection between indoors and out.
The family-friendly layout cleverly groups the kids’ bedrooms in a dedicated wing at one end, together with a bathroom, rumpus, laundry and mud room, while the master bedroom with an indulgent walk-in wardrobe and lavish ensuite is at the opposite end of the home for extra privacy.
Other features include a separate study, walk-in linen cupboard, convenient key-drop zone and double garage.
Display Homes & 3D Tours for Montana by Boutique Homes
More House and Land Packages by Boutique Homes (Home Builder)
More Townhouses by Boutique Homes (Home Builder)

3
2
2


