
Montreal by Boutique Homes
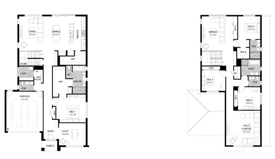
The first of Boutique Homes’ double-storey designs to feature the main bedroom and ensuite on the ground floor, the Montreal provides as much functionality as it does longevity.
A generous sized bedroom suite, complete with a luxurious double vanity ensuite and a spacious three-sided walk-in-robe with dressing table space, if positioned on the ground floor.
The large study at the front of the home house is the perfect space to work from home, while also providing privacy and noise protection for the main bedroom located behind it.
Within the rear of the home is a full-width open-plan main living area, with the kitchen, dining and living spaces running along the back wall. This area opens onto the covered outdoor living, enjoying plenty of natural light and creating a beautiful aspect overlooking the rear garden.
The minor bedrooms and further bathrooms are located upstairs, along with various multi-purpose living spaces. This versatile floorplan provides you ample space and light and extensive design options, to make your house your own.
Display Homes & 3D Tours for Montreal by Boutique Homes
More Townhouses by Boutique Homes (Home Builder)

3
2
2
