Fern by Brighton Homes

DISPLAY HOME

Beaming with warmth

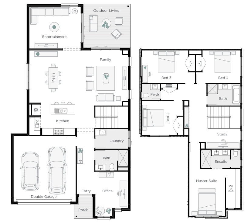
Open up the doors of the Fern 32 and let the fresh and pure air flow through your home. As you’re welcomed into the Fern 32 you’ll be greeted by an entry foyer which can be adapted to suit your lifestyle… Study, sitting room? The choice is all yours. In a generous display of Queensland living, you’ll love the kitchen, dining and living area with bonus media room and stunning alfresco. Enjoy the flow of the downstairs living area and embrace perfect indoor outdoor living with an alfresco that opens from the main living and media room.

Make your way upstairs in the Fern 32 for some quiet time. Find three generously sized secondary bedrooms and a spacious bathroom in a kids quarter your family will easily settle into. As you move through the home to the front master suite, you’ll love the use of space where a study nook is positioned by the staircase radiating warmth openness and light to the upstairs area. The front master suite depicts everything you’ve ever dreamed off for your private oasis. A walk-in robe, check! Double vanity ensuite with separate toilet, check! And an entry hallway, check! This is the master you’ve been dreaming of. The Fern 32 really takes into consideration Queensland living creating a home beaming with warmth and joy, ready for you to make it your own.

 


Floor-plan options for Fern

Fern 32
Bed 4
Bath 3.5
Living 2
Car 2
Home Design: Fern
Floor Area: 297.00m2
House Width: 10.95m
House Length: 19.6m

Display Homes & 3D Tours for Fern by Brighton Homes

Loading...