Chesterfield by Casaview Homes

DISPLAY HOME

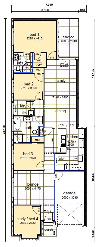
The Chesterfield 18 is on display at the Leppington Living Display Centre. Its an exceptional design suited for 9m wide zero lot blocks. The well spaced living, dining, kitchen with walk in pantry, ensuite and WIR to the master bed. It meets all the needs for a young growing family or as an investment for the future.


Floor-plan options for Chesterfield

Chesterfield 18
Bed 4
Bath 2
Living 2
Car 1
Home Design: Chesterfield
Floor Area: 165.10m2
House Width: 7.79m
House Length: 23.15m

Display Homes & 3D Tours for Chesterfield by Casaview Homes

Loading...