Kingston by Casaview Homes

DISPLAY HOME

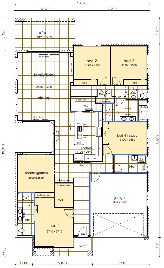
A nicely finetuned floor plan with 4 bedroom design and double garage. The family living and kitchen area combined with the alfresco are the heart of this design together with separate study nook, Theatre/Games room and large linen storages.


Floor-plan options for Kingston

Kingston 28
Bed 4
Bath 2
Living 2
Car 2
Home Design: Kingston
Floor Area: 260.65m2
House Width: 13.07m
House Length: 23.15m

Display Homes & 3D Tours for Kingston by Casaview Homes

Loading...