Primavera by Casaview Homes

DISPLAY HOME

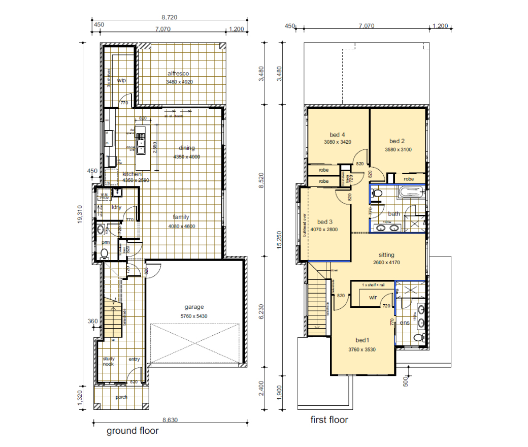
The Primavera 27 is a modern, double storey design suited for a 10m wide zero lot block, featuring a double garage and four bedrooms with a standout contemporary façade. The designer kitchen will amaze, with its spacious and smart walk in pantry, leading to a stylish open plan living with a generous family and dining room areas.

Upstairs it comprises of four spacious bedrooms and a sitting area that can also be used a study area, separating the master bedroom from the rest of the house. These features, plus the oversized alfresco and Casaview Homes commitment to quality and high-level inclusions, provide added value to your asset and lifestyle at a very reasonable price.

Without any doubt the Primavera 27 ticks all the boxes for a narrow lot design and is a great starter for the young growing family or as an investment for the future.


Floor-plan options for Primavera

Primavera 27
Bed 4
Bath 2.5
Living 2
Car 2
Home Design: Primavera
Floor Area: 250.40m2
House Width: 8.63m
House Length: 20.63m

Display Homes & 3D Tours for Primavera by Casaview Homes

Loading...