Stellar by Casaview Homes

DISPLAY HOME

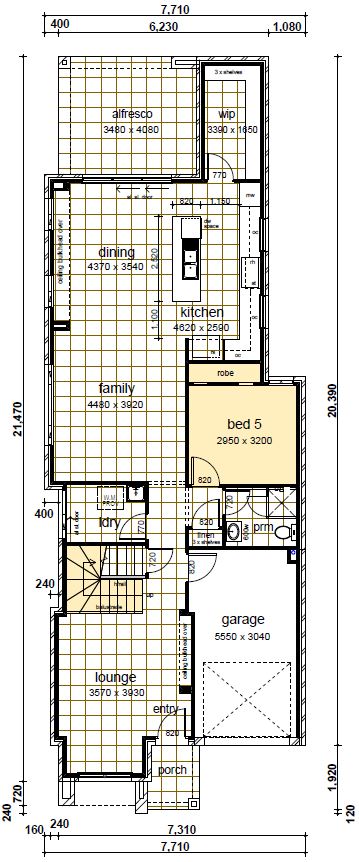
A brand new outstanding double storey narrow block design. The Stellar provides so much more value and design. With separate lounge, 5th bedroom to ground floor, large alfresco and open plan kitchen, dining and family. This 5 bedroom design is a fantastic starter or investment for the future. We love this so much we put it on display in at the Leppington Living Display centre. We think you will love it too.


Floor-plan options for Stellar

Stellar 27
Bed 5
Bath 3
Living 2
Car 1
Home Design: Stellar
Floor Area: 247.88m2
House Width: 7.71m
House Length: 21.47m

Display Homes & 3D Tours for Stellar by Casaview Homes

Loading...