Baltimore by Coral Homes

DISPLAY HOME

Designed to suit both traditional and narrow lots of 10m+, the sought-after Baltimore Series has multiple home designs to choose from. These innovative floorplans are designed for contemporary open-plan living, featuring an abundance of family-friendly communal areas.

 


Floor-plan options for Baltimore

Baltimore 330N
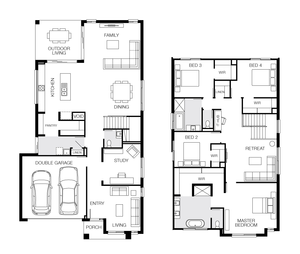
Bed 4
Bath 2.5
Living 3
Car 2
Builder: Coral Homes
Home Design: Baltimore
Floor Area: 330.87mm2
House Width: 11.35m
House Length: 25.7m
Baltimore 331Q
Bed 5
Bath 3
Living 3
Car 2
Builder: Coral Homes
Home Design: Baltimore
Floor Area: 331.87m2
House Width: 10.9m
House Length: 19.55m

Display Homes & 3D Tours for Baltimore by Coral Homes

Loading...

More House and Land Packages by Coral Homes (Home Builder)