Southcote by Creation Homes
DISPLAY HOME
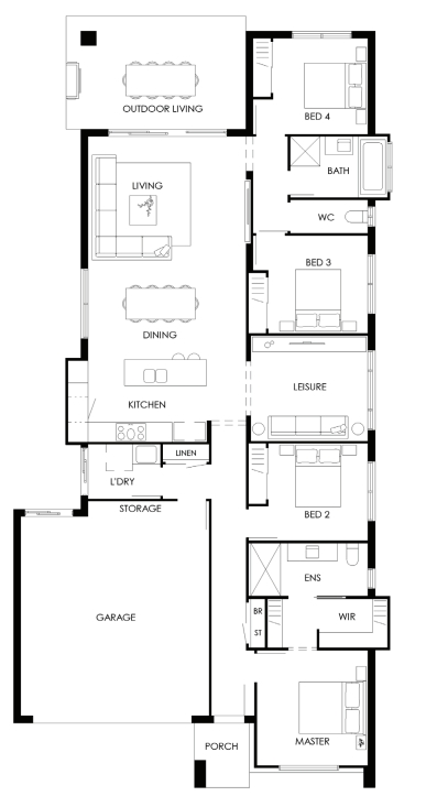
Ideal for a growing family, Southcote 23 has a private master suite with a spacious walk-in robe and ensuite bathroom. Each of the other three bedrooms include built-in robes and luxurious carpets. The home also includes an additional family/entertainment room to give everyone somewhere to relax and unwind.
Display Homes & 3D Tours for Southcote by Creation Homes
Loading...

4
