
Edmonton by Dennis Family Homes
DISPLAY HOME
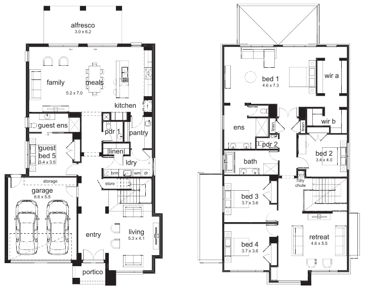
It’s grand scale living with this double-storey home design, where everything you need for today’s family is under one roof. The Edmonton’s clever design allows family and friends to come together across a grand scale living hub and alfresco situated across the back of the home, or retreat to quieter living spaces situated on both floors. Available in four and five bedroom versions all with walk-in robes, and with a ground floor guest suite option, it’s an ideal home for older children or multi-generational living.
Display Homes & 3D Tours for Edmonton by Dennis Family Homes
Loading...
5