
Santina by Dennis Family Homes
DISPLAY HOME
Stylish and irresistible!
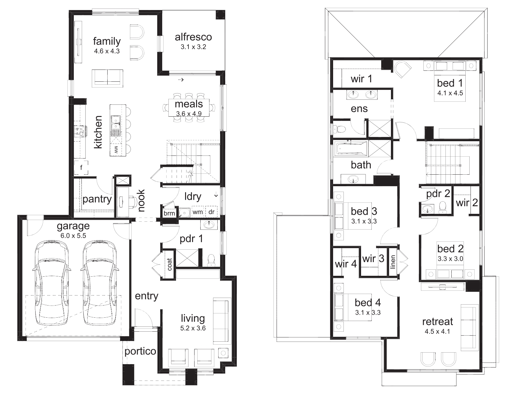
As the first double storey from the Aspirations range on show, the brand new design of the Santina is a pure delight and provides a desirable, affordable living option that combines the best of family amenities with modern finishes. Families of all ages will enjoy the functionality of the Santina, with all four bedrooms located upstairs, away from the main kitchen and living zone, for a peaceful sleeping arrangement.
Display Homes & 3D Tours for Santina by Dennis Family Homes
Loading...
4