Bristol by Domaine Homes
DISPLAY HOME
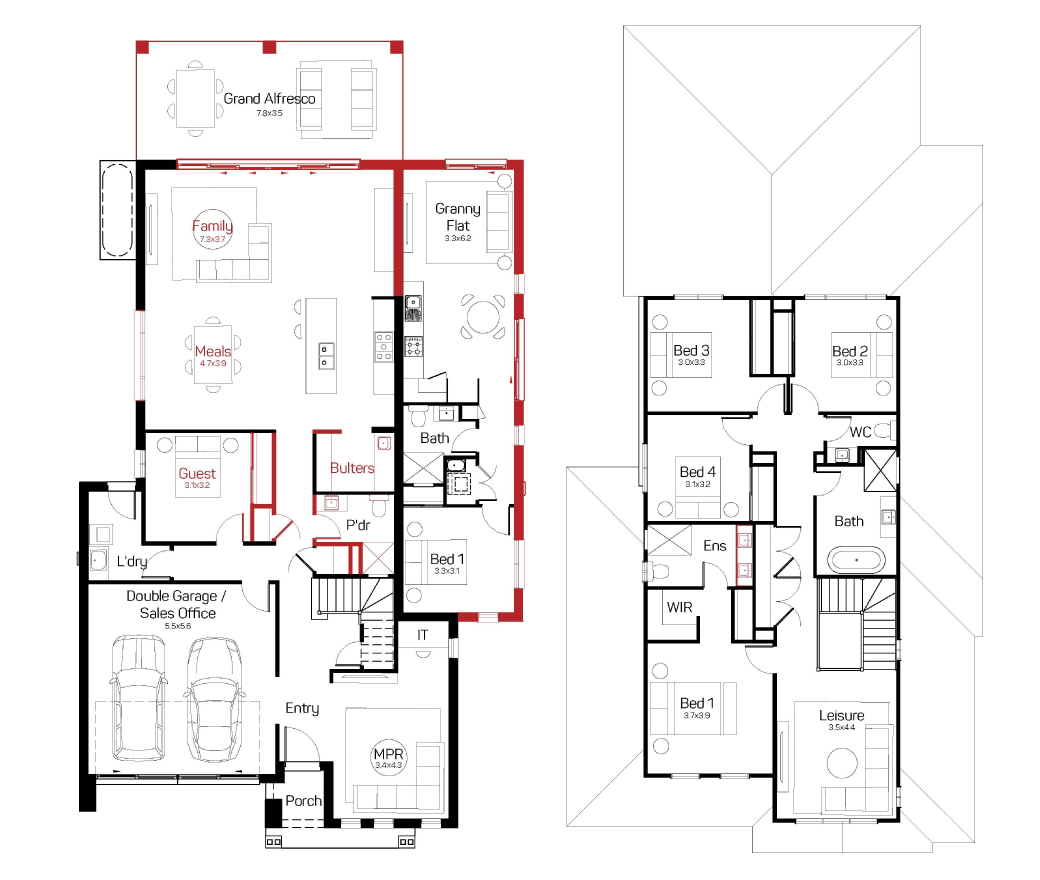
The Bristol 31 is a large double storey home with attached 1 bed granny flat which fits a 15m wide site.
The home includes 4 generous bedrooms to the first floor and a guest room to the ground floor with multi functional living area to the front of the home with private IT zone, perfect for those needing a work from home space.
The open plan living creates a flowing space from the kitchen all the way out to the grand alfresco allowing the space to be filled with natural light and fresh air.
The 1 bed granny flat attached to the side of the home complete with a private entry which separates it from the main dwelling.
Display Homes & 3D Tours for Bristol by Domaine Homes
Loading...
4
