Dilan by Dulger Homes
DISPLAY HOME
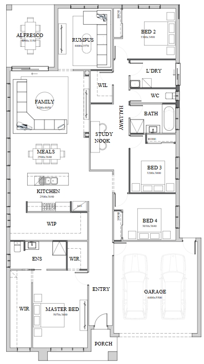
The luxurious floorplan of the Dilan 2881 is designed for the land of 14m x 32m. having 4 bedrooms, a retreat/rumpus at the rear and a master bedroom perfect for the king or queen of the home. The Dilan 2881 also boasts a stacked living area including a massive walk-in pantry and flows through to your alfresco. This home is designed with families in mind and could be your next masterpiece.
Display Homes & 3D Tours for Dilan by Dulger Homes
Loading...
4
