Midland by Eden Brae Homes
DISPLAY HOME
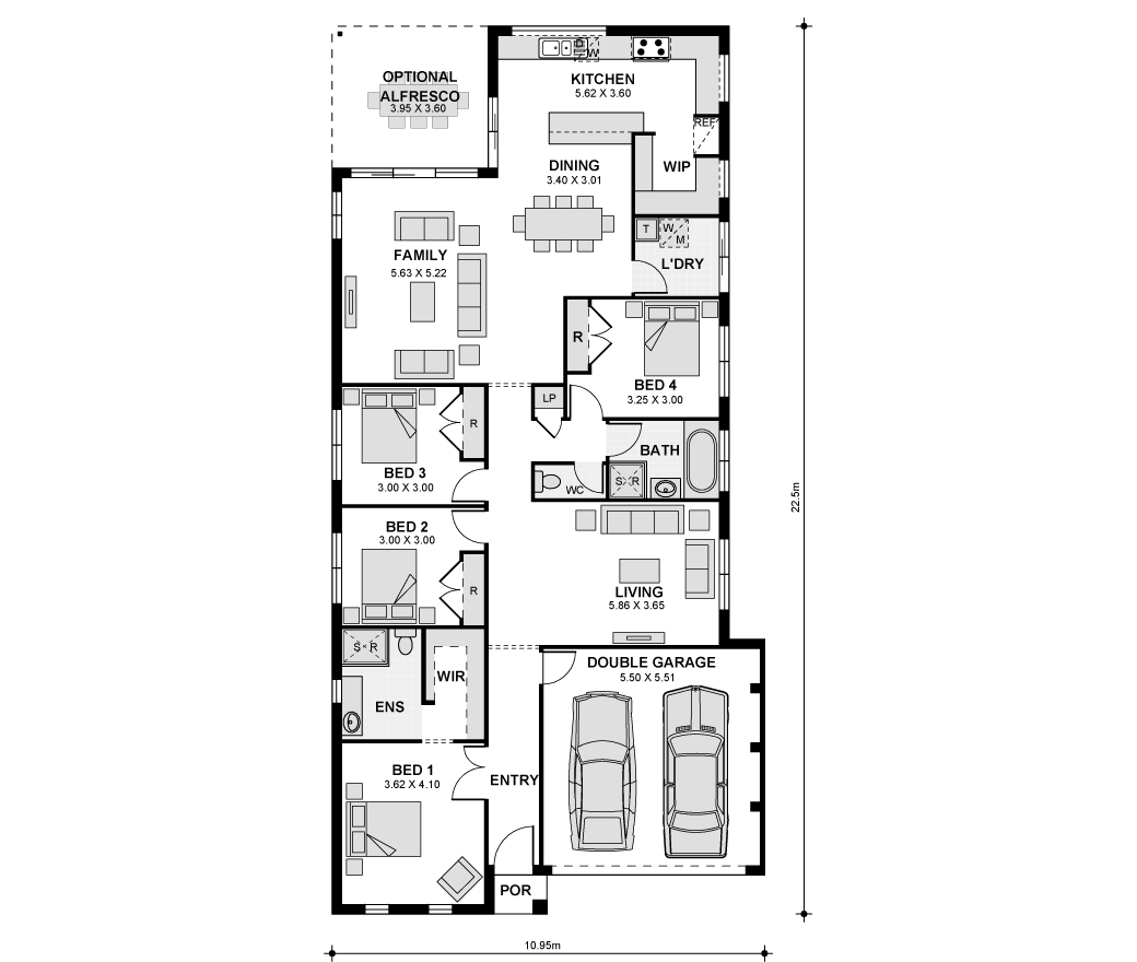
The Midland is one of our most popular single storey homes. The home situates all bedrooms to the front of the house and flows to the living at the rear. With a formal living room plus a sizeable open plan kitchen, dining and family room, you can also extend your living area by adding an alfresco. The Midland has all the style in a thoughtful, compact design.
Display Homes & 3D Tours for Midland by Eden Brae Homes
Loading...
Midland 21 | West Hamptons Façade By Eden Brae Homes
HomeWorld Leppington - Leppington
Midland 23 | Metro Façade By Eden Brae Homes
HomeWorld Box Hill - Box Hill
Midland 22 MK2 (Zero Lot) | Levante Façade By Eden Brae Homes
Oxley Ridge Estate - Cobbitty
Midland 21 | Kirra Façade By Eden Brae Homes
HomeWorld Marsden Park - Marsden Park
Midland 23 | West Hampton Façade By Eden Brae Homes
HomeWorld Thornton - Thornton
More House and Land Packages by Eden Brae Homes (Home Builder)

[Stockland The Gables] Precinct G - Stage 1: Lot 741 Sagewood: Savoy 36 (Guest Suite) Available
5
3
2Suburb: Gables NSW 2765
Builder:
Land Size: 450.00m²
Floor Area: 333.5m²
Hampton Facade
The Savoy is a stylish double-storey home featuring 4 bedrooms, an open-plan kitchen, dining, and family areas downstairs, plus a games room upstairs. With its contemporary design and functional layout, it offers spacious and comfortable living for modern families.
The Savoy is a stylish double-storey home featuring 4 bedrooms, an open-plan kitchen, dining, and family areas downstairs, plus a games room upstairs. With its contemporary design and functional layout, it offers spacious and comfortable living for modern families.
Price: $1,604,900 *