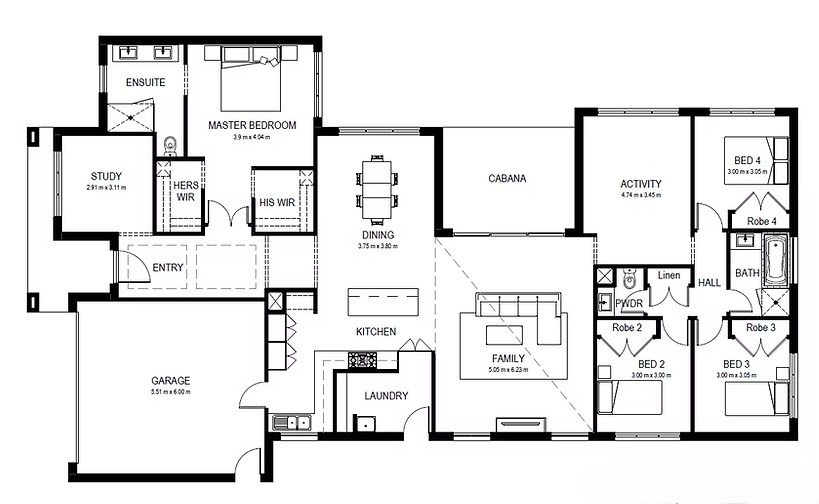
DISPLAY HOMEWynn 29 | @ Ferntree Ridge Estate - Drouin Home Designs by Elara Homes Wynn by Elara Homes HOME DESIGN Latest Pricing & Inclusions Floor-plan options for Wynn Wynn 29 4 2 2 2 Builder: Elara Homes Home Design: Wynn Floor Area: 271.29m2 Latest Pricing & Inclusions Display Homes & 3D Tours for Wynn by Elara Homes Loading... Wynn 29 By Elara HomesFerntree Ridge Estate - Drouin Ferntree Ridge Estate - Drouin