
Newport by Fairhaven Homes
DISPLAY HOME
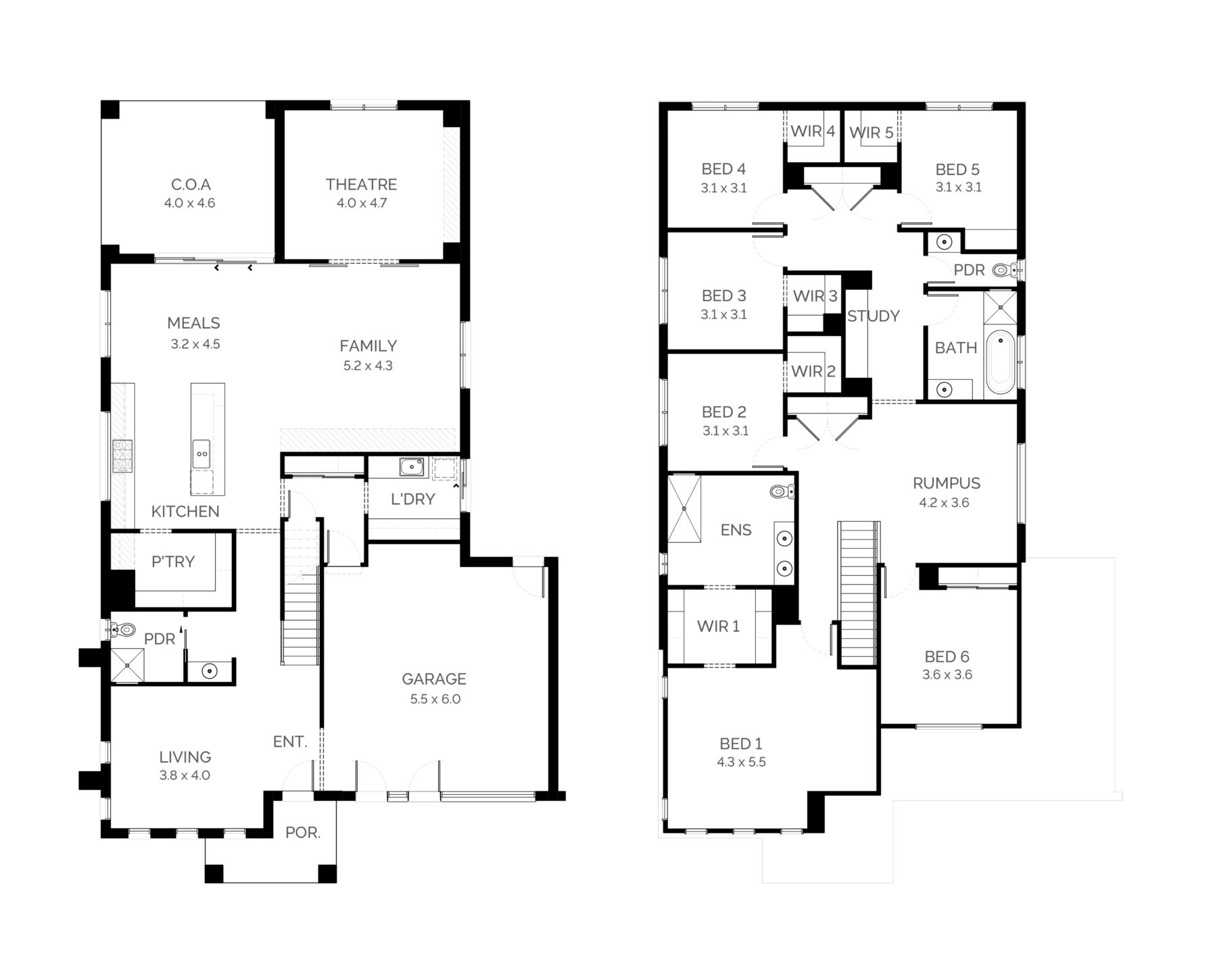
Contemporary Family Plan
The Newport is a flowing layout that appears modern and is suitable for most needs. Instantly greeted by bright and airy spaces, upstairs hosts all bedrooms while downstairs boasts a generous kitchen, dining and family areas. Select designs offer a covered outdoor area, seamlessly blending indoor and outdoor living.
Display Homes & 3D Tours for Newport by Fairhaven Homes
Loading...
5