Albury by Firstyle Homes
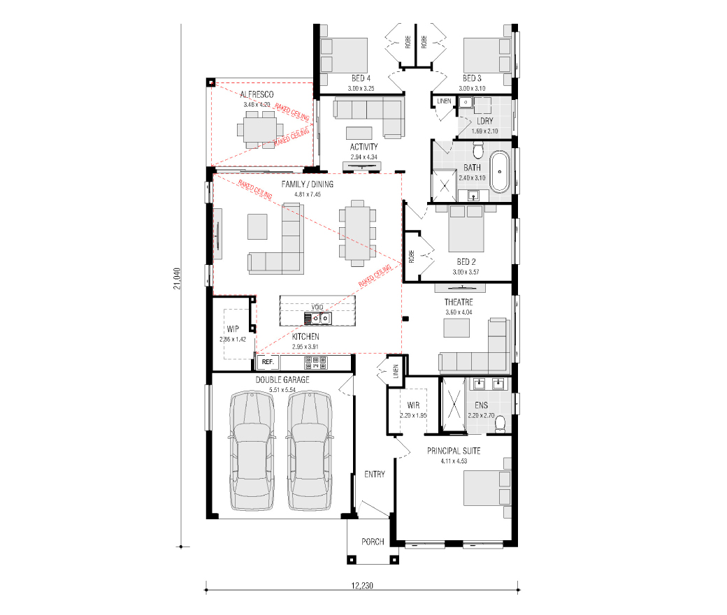
This single-storey display home is an elegant blend of modern design and comfort, thoughtfully laid out across a spacious floor plan. Upon entering, you are welcomed by a wide hallway that leads to an open-concept living area, where large windows flood the space with natural light.
The living room seamlessly connects to a contemporary kitchen, equipped with state-of-the-art appliances, ample cabinetry, and a sleek island perfect for casual dining or entertaining.
The home features four generously sized bedrooms, each designed to offer a private retreat. The master bedroom is a true sanctuary, complete with a luxurious ensuite bathroom featuring a double vanity, walk-in shower, and a large walk-in closet. The remaining three bedrooms are equally well-appointed, each with built-in wardrobes and easy access to a stylish main bathroom.
Throughout the home, high-quality finishes, neutral tones, and thoughtful details create an atmosphere of modern sophistication, making this display home a perfect example of contemporary family living.

4