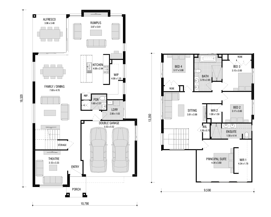
DISPLAY HOMENorwood 31.4 Distinct | Summit @ HomeWorld Marsden Park - Marsden Park Home Designs by Firstyle Homes Norwood by Firstyle Homes HOME DESIGN Latest Pricing & Inclusions Floor-plan options for Norwood Norwood 31.4 Distinct 4 2 2 2 Builder: Firstyle Homes Home Design: Norwood Floor Area: 292.95m2 House Width: 10.79m House Length: 18.32m Latest Pricing & Inclusions Display Homes & 3D Tours for Norwood by Firstyle Homes Loading... Norwood 31.4 Distinct | Summit Façade By Firstyle Homes HomeWorld Marsden Park - Marsden Park HomeWorld Marsden Park - Marsden Park