Atlantis by Fowler Homes

DISPLAY HOME

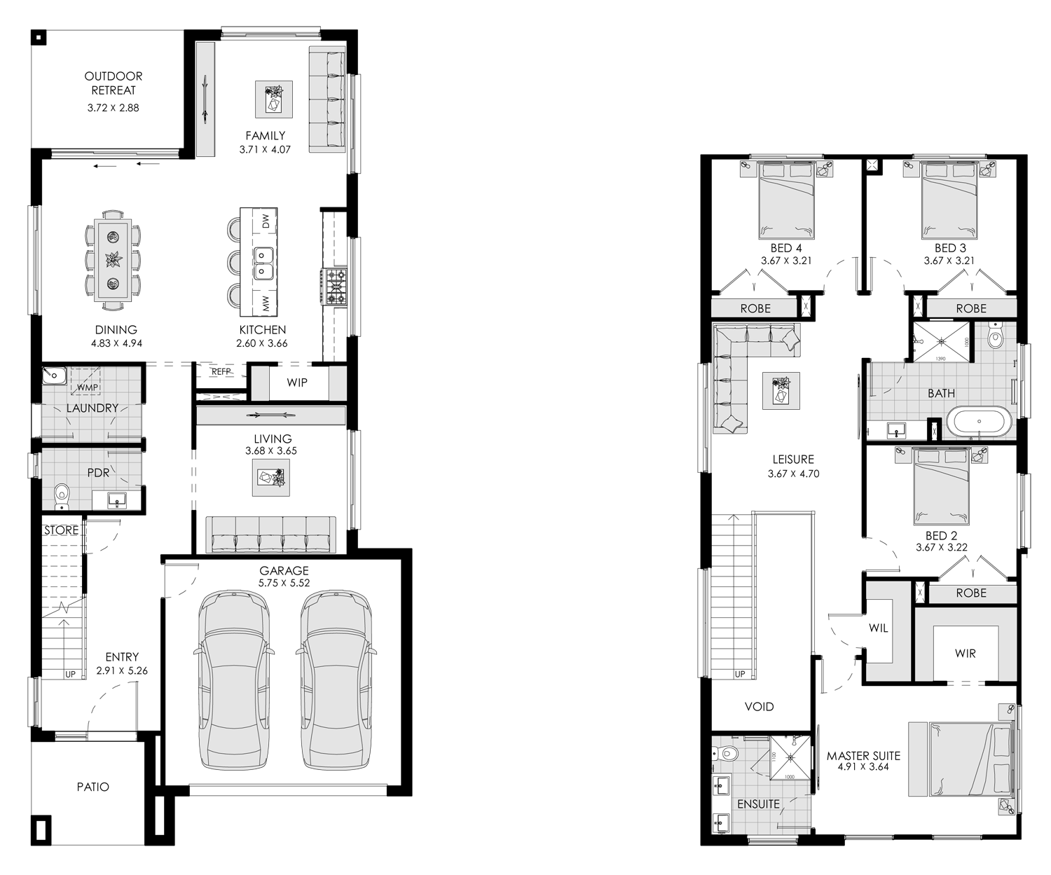
A narrow lot design, our ‘Atlantis’ 31 will make the most of your block.

The heart of the home compromises of a beautiful open-plan kitchen, dining and lounge perfect for entertaining and celebrating special milestones with friends and family.

With multiple leisure zones, an outdoor retreat, double car garage and four spacious bedrooms tucked away upstairs, there is plenty of space to relax and unwind.

Our ‘Atlantis’ 31 exceeds all expectations to deliver big on living.


Floor-plan options for Atlantis

Atlantis 31
Bed 4
Bath 3
Living 3
Car 2
Home Design: Atlantis
Floor Area: 289.82 m2
House Width: 9.23m
House Length: 19.78m

Display Homes & 3D Tours for Atlantis by Fowler Homes

Loading...