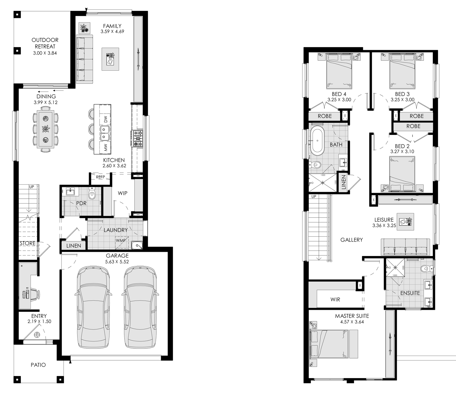
DISPLAY HOMEBrookwater 28 Display | @ HomeWorld Marsden Park - Marsden Park Home Designs by Fowler Homes Brookwater by Fowler Homes HOME DESIGN Floor-plan options for Brookwater Brookwater 28 Display 4 3 3 2 Builder: Fowler Homes Home Design: Brookwater Floor Area: 256.96m2 House Width: 8.39m House Length: 19.67m Display Homes & 3D Tours for Brookwater by Fowler Homes Loading... Brookwater 28 Display By Fowler Homes HomeWorld Marsden Park - Marsden Park HomeWorld Marsden Park - Marsden Park