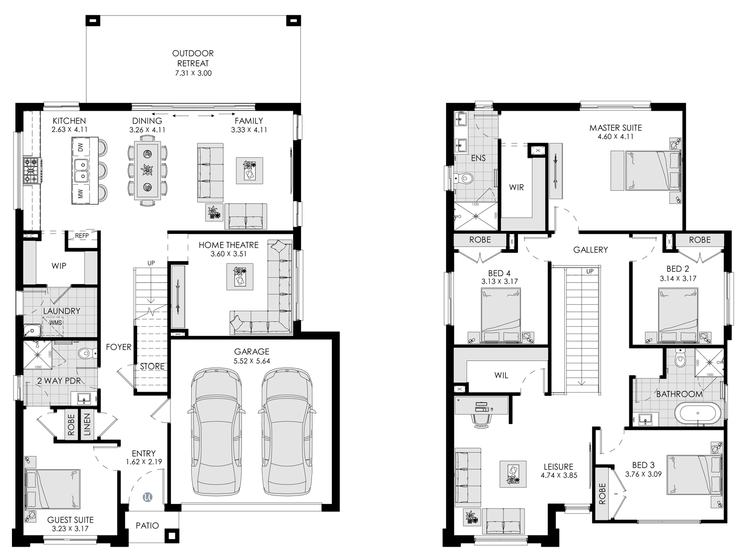
DISPLAY HOMESt. Tropez 33 Display | @ HomeWorld Marsden Park - Marsden Park Home Designs by Fowler Homes St. Tropez by Fowler Homes HOME DESIGN Floor-plan options for St. Tropez St. Tropez 33 Display 5 3 3 2 Builder: Fowler Homes Home Design: St. Tropez Floor Area: 304.76m2 House Width: 11.03m House Length: 17.99m Display Homes & 3D Tours for St. Tropez by Fowler Homes Loading... St. Tropez 33 Display By Fowler Homes HomeWorld Marsden Park - Marsden Park HomeWorld Marsden Park - Marsden Park