
Samsara by G.J. Gardner Homes
With effortless connections throughout the home, the Samsara seamlessly flows between indoor and outdoor living spaces making the most of resort style living.
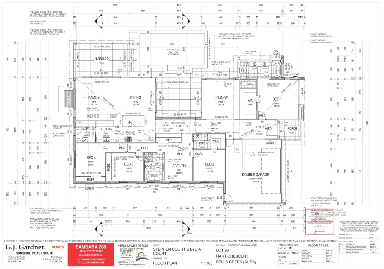
A central courtyard allows light and breezes to enter the home providing a relaxed and comfortable environment while a covered alfresco extends the open plan living space outdoors for year-round entertaining.
A spacious master suite is privately positioned to the front of home complete with elegant ensuite and walk in robe while the kids’ zone to the rear has generous sized bedrooms, a family bathroom and an activity room or study.
The separate lounge room provides a quiet space to relax and unwind while maintaining a strong connection to the main living areas and central courtyard.

4
