Ascot by Hall & Hart

DISPLAY HOME

Ascot house blends clean lines and strong features with a warm colour palette and natural materials like rich timbers and unpolished stone. The design focuses on simplicity while maintaining a welcoming atmosphere. High ceilings add to the sense of space, with the family room at the rear featuring a raised ceiling for an extra touch of elegance. Created in collaboration with DKO Architecture, the design ensures that all key living areas work together seamlessly, making everyday living and entertaining effortless for the family.

 


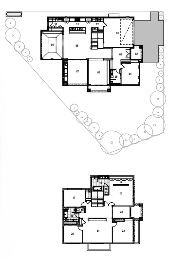
Floor-plan options for Ascot

Ascot
Bed 5
Bath 3
Living 2
Car 2
Builder: Hall & Hart
Home Design: Ascot
Floor Area: 387m2

Display Homes & 3D Tours for Ascot by Hall & Hart

Loading...