Cumberland by Hamlan Homes
DISPLAY HOME
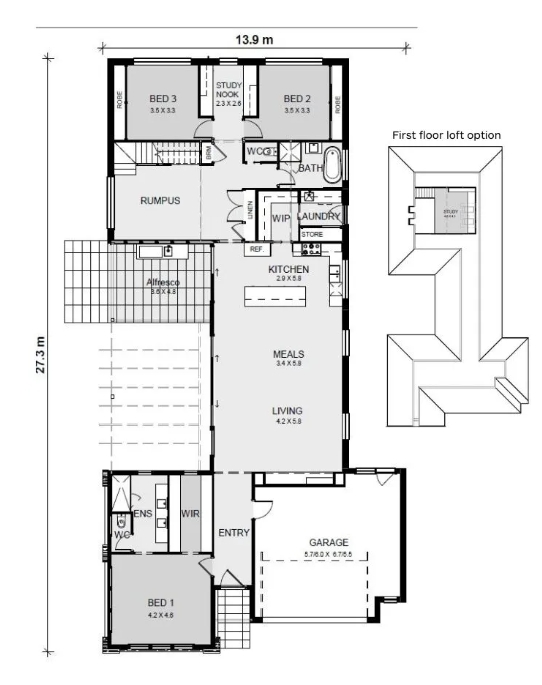
The Cumberland 242 is ideal for growing families.
A generous, light-filled courtyard forms the centre of this home. The kitchen, meals and living areas open out to the courtyard via stacker doors creating an ideal entertaining space. Complemented with a large L-shaped kitchen and generous walk-in pantry you will soon be hosting family gatherings and dinner parties.
The functional layout flows from the parents’ retreat at the front of the home through open plan living, to the three kids‘ bedrooms and family room at the rear.
The generous master bedroom includes a WIR which flows through to the ensuite featuring a large shower and double vanity.
Display Homes & 3D Tours for Cumberland by Hamlan Homes
Loading...
More House and Land Packages by Hamlan Homes (Home Builder)
More Townhouses by Hamlan Homes (Home Builder)
3
2.5
2Suburb: Point Lonsdale VIC 3225
Builder:
Floor Area: 272.17sq
Orientation: North
3-4 Bedroom town home available at THE POINT - Point Lonsdale by Moremac
o Expected completion late May/June 2024
o Complete with fencing & landscaping
o Water fronting views
o Townhouse includes a lift cavity for post installation
o Solar
Delivered by leading local builder Hamlan Homes, each home is fitted with deluxe inclusions, including Smeg appliances, Essastone benchtops, Laminex cabinetry and more.
With natural parklands, glistening waterways and picturesque coastline at your doorstep, don’t miss this incredible opportunity to enjoy luxurious, low-maintenance at its finest in the heart of Point Lonsdale!
Find out more on 0460016789
o Expected completion late May/June 2024
o Complete with fencing & landscaping
o Water fronting views
o Townhouse includes a lift cavity for post installation
o Solar
Delivered by leading local builder Hamlan Homes, each home is fitted with deluxe inclusions, including Smeg appliances, Essastone benchtops, Laminex cabinetry and more.
With natural parklands, glistening waterways and picturesque coastline at your doorstep, don’t miss this incredible opportunity to enjoy luxurious, low-maintenance at its finest in the heart of Point Lonsdale!
Find out more on 0460016789
Price: $1,360,000
4
2.5
2Suburb: Point Lonsdale VIC 3225
Builder:
Floor Area: 305.19sq
Orientation: North
3 - 4 Bedroom town homes available at THE POINT - Point Lonsdale by Moremac
o Expected completion late May/June 2024
o Complete with fencing & landscaping
o Water fronting views
o Townhouse includes a lift cavity for post installation
o Solar
Delivered by leading local builder Hamlan Homes, each home is fitted with deluxe inclusions, including Smeg appliances, Essastone benchtops, Laminex cabinetry and more.
With natural parklands, glistening waterways and picturesque coastline at your doorstep, don’t miss this incredible opportunity to enjoy luxurious, low-maintenance at its finest in the heart of Point Lonsdale!
o Expected completion late May/June 2024
o Complete with fencing & landscaping
o Water fronting views
o Townhouse includes a lift cavity for post installation
o Solar
Delivered by leading local builder Hamlan Homes, each home is fitted with deluxe inclusions, including Smeg appliances, Essastone benchtops, Laminex cabinetry and more.
With natural parklands, glistening waterways and picturesque coastline at your doorstep, don’t miss this incredible opportunity to enjoy luxurious, low-maintenance at its finest in the heart of Point Lonsdale!
Price: $1,750,000
4
2.5
2Suburb: Point Lonsdale VIC 3225
Builder:
Floor Area: 305.19sq
Orientation: North
OPEN FOR INSPECTIONS
3 - 4 Bedroom town homes available at THE POINT - Point Lonsdale by Moremac
o Expected completion late June 2024
o Complete with fencing & landscaping
o Water fronting views
o Townhouse includes a lift cavity for post installation
o Solar
Delivered by leading local builder Hamlan Homes, each home is fitted with deluxe inclusions, including Smeg appliances, Essastone benchtops, Laminex cabinetry and more.
With natural parklands, glistening waterways and picturesque coastline at your doorstep, don’t miss this incredible opportunity to enjoy luxurious, low-maintenance at its finest in the heart of Point Lonsdale!
Find out more - 0460016789
o Expected completion late June 2024
o Complete with fencing & landscaping
o Water fronting views
o Townhouse includes a lift cavity for post installation
o Solar
Delivered by leading local builder Hamlan Homes, each home is fitted with deluxe inclusions, including Smeg appliances, Essastone benchtops, Laminex cabinetry and more.
With natural parklands, glistening waterways and picturesque coastline at your doorstep, don’t miss this incredible opportunity to enjoy luxurious, low-maintenance at its finest in the heart of Point Lonsdale!
Find out more - 0460016789
Price: $1,750,000