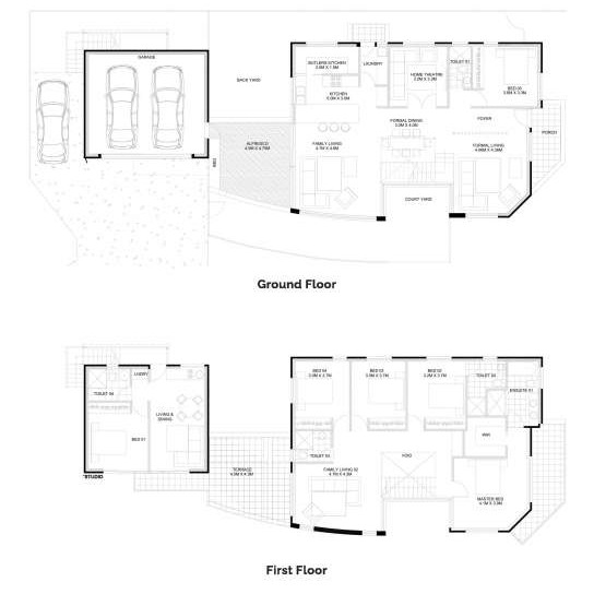
DISPLAY HOMEProdigy 253 | @ Leppington Living Display Village - Leppington Home Designs by Hashtag Custom Builds The Prodigy by Hashtag Custom Builds HOME DESIGN Floor-plan options for The Prodigy Prodigy 253 5 3.5 3 2 Builder: Hashtag Custom Builds Home Design: The Prodigy Floor Area: 406.2m2 Display Homes & 3D Tours for The Prodigy by Hashtag Custom Builds Loading... Prodigy 253 By Hashtag Custom BuildsLeppington Living Display Village - Leppington Leppington Living Display Village - Leppington