Emperor by Henley Homes

DISPLAY HOME

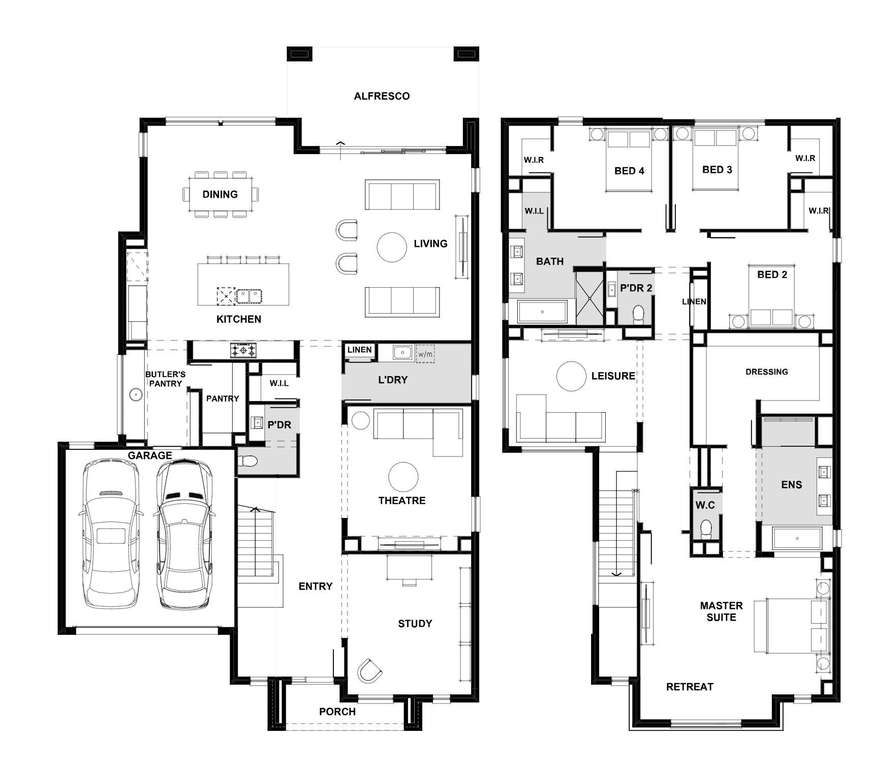
The Emperor series caters to every need of a busy household.

Be greeted by the grand floating staircase that will lead you into family hub of the home which opens up into an expansive entertaining zone. The kitchen is the place to be featuring a butlers pantry tucked behind which has direct access from the garage for easy transfer of groceries. When the day is done, indulge and relax in the huge Master Suite that occupies 1/3 of the first level.

 


Floor-plan options for Emperor

Emperor 48
Bed 4
Bath 2
Living 2
Car 2
Home Design: Emperor
Floor Area: 459m2
House Width: 14.17m
House Length: 23.02m
Emperor 483-D52
Bed 4
Bath 2
Living 2
Car 2
Home Design: Emperor
Floor Area: 483.2m2
House Width: 14.17m
House Length: 24.17m
Emperor 459-D49
Bed 4
Bath 2
Living 2
Car 2
Home Design: Emperor
Floor Area: 459m2
House Width: 14.17m
House Length: 23.02m

Display Homes & 3D Tours for Emperor by Henley Homes

Loading...

More House and Land Packages by Henley Homes (Home Builder)

Bed  4 Bath  2 Car  2
Suburb: Bonnie Brook VIC 3335
Land Size: 400.00m²
Floor Area: 22.56sq
Orientation: West
Est. Land Registration: Jan 2025
Lot 507 Potala Avenue - The Dales, Bonnie Brook
Welcome to Your Future at Bonnie Brook

Henley Homes presents a stunning opportunity to own a piece of the serene and rapidly growing suburb of Bonnie Brook, nestled in the heart of The Dales estate only 10 mins from Deanside, Rockbank and Caroline Springs. This location promises a perfect blend of urban convenience and suburban tranquillity, making it an ideal choice for growing families and professionals alike.

Property Highlights:

Community: Join a neighbourhood known for its safety, friendly neighbours, and perfect positioning near essential amenities and lush green parks.

Connectivity: Enjoy the perks of living close to freeways, with top-notch schools, shopping centres, and healthcare facilities just a stone’s throw away.

Education: Benefit from a selection of esteemed primary and secondary schools, ensuring your children’s educational needs are met with excellence.

Transportation: With Rockbank train station just 10 minutes away and convenient bus routes 444 and 456, your daily commute is set to be a breeze.

Design & Comfort: A spacious 23 SQ home, boasting 4 well-appointed bedrooms, 2 modern bathrooms, and a secure double garage. All secondary bedrooms include built in robes.

Outdoor Living: A substantial 400m² block provides a deep, spacious backyard, perfect for playtime with the kids, relaxation and entertaining.

Sustainability: Achieve a greener lifestyle with a 7-star energy efficiency rating and a 2,000-litre water tank.

Modern Amenities: Experience the epitome of contemporary living with an open plan kitchen featuring 900mm Smeg appliances, expansive living areas, and double-glazed windows throughout. The leisure zone is thoughtfully designed to be a versatile space for relaxation and enjoyment and an east facing master bedroom bathed in morning sunlight.

Storage Solutions: Generous built-in storage catering to all your organisational needs.

Architectural Elegance: The Henley Cavalier facade offers a contemporary look that’s sure to impress.

This 7-star house & land package is ideal for a first home-owner complete with front landscaping and a FIXED PRICE that qualifies for the $10,000 First Home Owner Grant (FHOG) for eligible customers. For a personal tour and to explore the possibilities contact our team at Mt Atkinson, Truganina on 03 8306 6080.

For more homes please visit https://henley.com.au/

*Based on land price provided by Developer as of November 2024. Henley does not have authority to negotiate land sale. Land is sold separately by Developer. All land enquiries to be made direct to Developer. Home price based on a standard home, standard inclusions, Henley's preferred siting and preferred building surveyor. Home price does not include additional costs for delay in land titles, or any allowance for bushfire requirements. ~Flooring is Category 1 Carpet, and Category 1A Nordic Timber Laminate; +Double glazed windows excludes all doors, sidelights, butt jointed corner windows and picture windows to living areas. Allowance for Estate Guidelines# is based on items that can be identified in the Estate Guidelines at the time of fixing price and does not include discretionary items by Developer. House dimensions are for base floorplan and do not take into consideration any structural options chosen. Talk to your New Home Consultant to find out what upgrade amount was included for this package as they differ per house type. Images may show Caesarstone® benchtops which are not available due to a Government ban on engineered stone containing silica. Please speak to your New Home Consultant for options available at the time you pay a deposit. All plans are copyright, no part may be used, reproduced or copied by any means or in any form without the prior permission of Henley Arch Pty Ltd. Henley Arch Pty Ltd Reg No: CDB-U 49972. This home has not been constructed.
Price: $750,081
Bed  4 Bath  2 Car  2
Suburb: Bonnie Brook VIC 3335
Land Size: 336.00m²
Floor Area: 31.11sq
Orientation: East
Est. Land Registration: Jan 2025
Lot 502 Potala Avenue - The Dales, Bonnie Brook
Welcome to Your Future at Bonnie Brook

Henley Homes presents a stunning opportunity to own a piece of the serene and rapidly growing suburb of Bonnie Brook, nestled in the heart of The Dales only 10 mins from Deanside, Rockbank and Caroline Springs. This location promises a perfect blend of urban convenience and suburban tranquillity, making it an ideal choice for growing families and professionals alike.

Property Highlights:

Community: Join a neighbourhood known for its safety, friendly neighbours, and perfect positioning near essential amenities and lush green parks.

Connectivity: Enjoy the perks of living close to freeways, with top-notch schools, shopping centers, and healthcare facilities just a stone’s throw away.

Education: Benefit from a selection of esteemed primary and secondary schools, ensuring your children’s educational needs are met with excellence.

Transportation: With Rockbank train station just 10 minutes away and convenient bus routes 444 and 456, your daily commute is set to be a breeze.

Design & Comfort: A spacious 31 SQ home, boasting 4 well-appointed bedrooms, 2 modern bathrooms, and a secure double garage. All secondary bedrooms include built in robes.

Outdoor Living: A substantial 336m² block provides a deep, spacious backyard, perfect for playtime with the kids, relaxation and entertaining.

Sustainability: Achieve a greener lifestyle with a 7-star energy efficiency rating and a 2,000-litre water tank.

Modern Amenities: Experience the epitome of contemporary living with an open plan kitchen featuring 900mm Smeg appliances, expansive living areas, and double-glazed windows throughout. The leisure zone is thoughtfully designed to be a versatile space for relaxation and enjoyment and an east facing master bedroom bathed in morning sunlight.

Storage Solutions: Generous built-in storage catering to all your organisational needs.

Architectural Elegance: The Henley Novello facade offers a contemporary look that’s sure to impress.


For a personal tour and to explore the possibilities contact our team at Mt Atkinson, Truganina.

Schools (links)
• Primary – Deanside Primary, Rockbank Primary, Parkwood Primary and Aintree Primary
• Secondary - Springside West Secondary College (Fraser Rise), Catholic Regional College Sydenham (Sydenham), Southern Cross Grammar (Caroline Springs) and Staughton College (Melton) and under 10 minutes to Bacchus March Grammar (Woodlea Campus)

For more homes please visit https://henley.com.au/

*Based on land price provided by Developer as of November 2024. Henley does not have authority to negotiate land sale. Land is sold separately by Developer. All land enquiries to be made direct to Developer. Home price based on a standard home, standard inclusions, Henley's preferred siting and preferred building surveyor. Home price does not include additional costs for delay in land titles, or any allowance for bushfire requirements. ~Flooring is Category 1 Carpet, and Category 1A Nordic Timber Laminate; +Double glazed windows excludes all doors, sidelights, butt jointed corner windows and picture windows to living areas. Allowance for Estate Guidelines# is based on items that can be identified in the Estate Guidelines at the time of fixing price and does not include discretionary items by Developer. House dimensions are for base floorplan and do not take into consideration any structural options chosen. Talk to your New Home Consultant to find out what upgrade amount was included for this package as they differ per house type. Images may show Caesarstone® benchtops which are not available due to a Government ban on engineered stone containing silica. Please speak to your New Home Consultant for options available at the time you pay a deposit. All plans are copyright, no part may be used, reproduced or copied by any means or in any form without the prior permission of Henley Arch Pty Ltd. Henley Arch Pty Ltd Reg No: CDB-U 49972. This home has not been constructed.
Price: $821,076
Bed  4 Bath  2 Car  2
Suburb: Bonnie Brook VIC 3335
Land Size: 400.00m²
Floor Area: 33.55sq
Orientation: East
Est. Land Registration: Jan 2025
Lot 506 Potala Avenue - The Dales, Bonnie Brook
Welcome to Your Future at Bonnie Brook

Henley Homes presents a stunning opportunity to own a piece of the serene and rapidly growing suburb of Bonnie Brook, nestled in the heart of The Dales only 10 mins from Deanside, Rockbank and Caroline Springs. This location promises a perfect blend of urban convenience and suburban tranquillity, making it an ideal choice for growing families and professionals alike.

Property Highlights:

Community: Join a neighbourhood known for its safety, friendly neighbours, and perfect positioning near essential amenities and lush green parks.

Connectivity: Enjoy the perks of living close to freeways, with top-notch schools, shopping centers, and healthcare facilities just a stone’s throw away.

Education: Benefit from a selection of esteemed primary and secondary schools, ensuring your children’s educational needs are met with excellence.

Transportation: With Rockbank train station just 10 minutes away and convenient bus routes 444 and 456, your daily commute is set to be a breeze.

Design & Comfort: A spacious 31 SQ home, boasting 4 well-appointed bedrooms, 2 modern bathrooms, and a secure double garage. All secondary bedrooms include built in robes.

Outdoor Living: A substantial 400m² block provides a deep, spacious backyard, perfect for playtime with the kids, relaxation and entertaining.

Sustainability: Achieve a greener lifestyle with a 7-star energy efficiency rating and a 2,000-litre water tank.

Modern Amenities: Experience the epitome of contemporary living with an open plan kitchen featuring 900mm Smeg appliances, expansive living areas, and double-glazed windows throughout. The leisure zone is thoughtfully designed to be a versatile space for relaxation and enjoyment and an east facing master bedroom bathed in morning sunlight.

Storage Solutions: Generous built-in storage catering to all your organisational needs.

Architectural Elegance: The Henley Novello facade offers a contemporary look that’s sure to impress.

Reach out to our team at Mt Atkinson, Truganina (phone: 03 8306 6080) for a personal tour and to explore the endless possibilities.

Schools (links)
• Primary – Deanside Primary, Rockbank Primary, Parkwood Primary and Aintree Primary
• Secondary - Springside West Secondary College (Fraser Rise), Catholic Regional College Sydenham (Sydenham), Southern Cross Grammar (Caroline Springs) and Staughton College (Melton) and under 10 minutes to Bacchus March Grammar (Woodlea Campus)

For more homes please visit https://henley.com.au/

*Based on land price provided by Developer as of November 2024. Henley does not have authority to negotiate land sale. Land is sold separately by Developer. All land enquiries to be made direct to Developer. Home price based on a standard home, standard inclusions, Henley's preferred siting and preferred building surveyor. Home price does not include additional costs for delay in land titles, or any allowance for bushfire requirements. ~Flooring is Category 1 Carpet, and Category 1A Nordic Timber Laminate; +Double glazed windows excludes all doors, sidelights, butt jointed corner windows and picture windows to living areas. Allowance for Estate Guidelines# is based on items that can be identified in the Estate Guidelines at the time of fixing price and does not include discretionary items by Developer. House dimensions are for base floorplan and do not take into consideration any structural options chosen. Talk to your New Home Consultant to find out what upgrade amount was included for this package as they differ per house type. Images may show Caesarstone® benchtops which are not available due to a Government ban on engineered stone containing silica. Please speak to your New Home Consultant for options available at the time you pay a deposit. All plans are copyright, no part may be used, reproduced or copied by any means or in any form without the prior permission of Henley Arch Pty Ltd. Henley Arch Pty Ltd Reg No: CDB-U 49972. This home has not been constructed.
Price: $907,253
Emperor by Henley Homes