Palace by Henley Homes
DISPLAY HOME
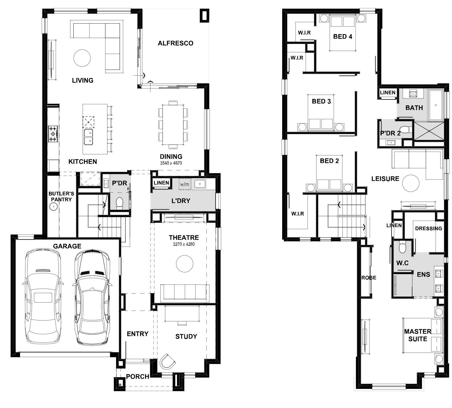
The Palace is an impressive double storey home with five living areas and features up to five bedrooms, making this the only design to do so.
The living area comprises nearly half of the ground floor that is flooded with natural light and can easily accommodate family gatherings with a powder room for guests. The Master Suite is an indulgent space with a walk in dressing room, plus a second long wardrobe for ample clothing storage.
Display Homes & 3D Tours for Palace by Henley Homes
Loading...
4

