Luca by Hotondo Homes
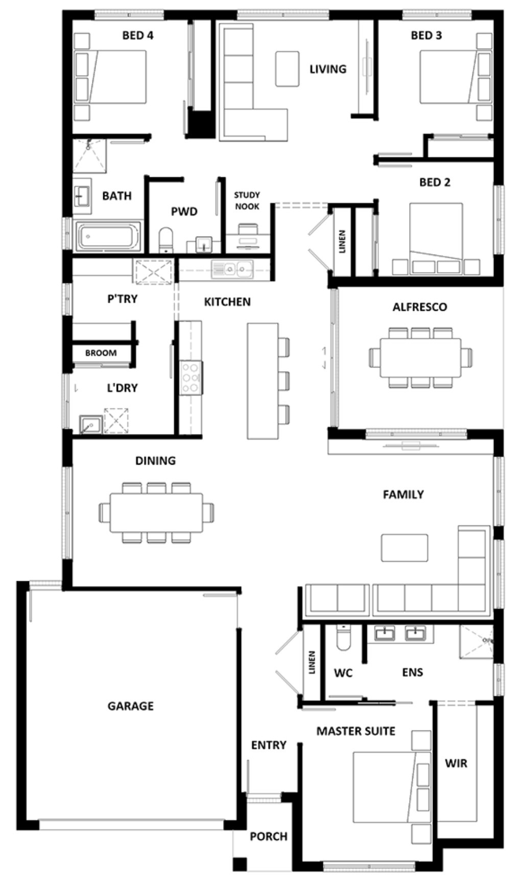
The Luca boasts four large bedrooms and two separate living areas. A stunning parents’ paradise, you will find the master suite at the front of the home. It features a large walk-in robe, plus an ensuite with double basins. The heart of the home is an entertainer’s haven, complete with a huge kitchen with island bench, plus a family and dining area. It also includes a spacious walk-in pantry and laundry, as well as easy to access alfresco. The rear of the home was designed for the kids, featuring three additional bedrooms, all with built-in robes, which wrap around a central living room. This area also houses a family bathroom and a conveniently located study nook. The Luca could be the ultimate home for you and your family.
Display Homes & 3D Tours for Luca by Hotondo Homes
More House and Land Packages by Hotondo Homes (Home Builder)

4
2.5
2
4
2.5
2
4
2
2900mm Stainless Steel Appliances
Ducted Heating
Facade Options Available
Generous site cost allowance
Local builder/Local trades
Local Inclusions Apply
Local Promotional Offer
Sanctuary Inclusions - speak to our team!