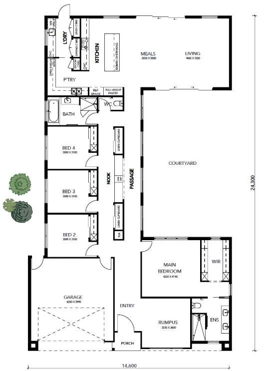
DISPLAY HOMEEleanor 29 | @ Lucas Ballarat - Lucas Home Designs by Hudson Ridge Builders Eleanor by Hudson Ridge Builders HOME DESIGN Latest Pricing & Inclusions Floor-plan options for Eleanor Eleanor 29 4 2 2 2 Builder: Hudson Ridge Builders Home Design: Eleanor Floor Area: 267.25m2 House Width: 14.6m House Length: 24.3m Latest Pricing & Inclusions Display Homes & 3D Tours for Eleanor by Hudson Ridge Builders Loading... Eleanor 29 By Hudson Ridge Builders Lucas Ballarat - Lucas Lucas Ballarat - Lucas More House and Land Packages by Hudson Ridge Builders (Home Builder) House & Land [The Roads Estate] Lot 22 26 Trezise Lane Mount Clear: Bailey & Eleanor Available 4 2 2Suburb: Mount Clear VIC 3350 Builder: Hudson Ridge Builders Land Size: 799.00m²Floor Area: 265.69sq The Eleanor range offers a private master room with its own courtyard access. Gather around the island bench with easy access to the full length pantry and laundry, or entertain at opposite ends of the home and spread out in comfort of the two living areas. The bedrooms and bathrooms are positioned with privacy and sunlight in mind, allowing for endless functionality on a modern family sized block.This design features the Bailey facade and Eleanor floorplan. House & Land [The Roads Estate] Lot 16 26 Trezise Lane Mount Clear: Pakington & Opal Available 4 2 2Suburb: Mount Clear VIC 3350 Builder: Hudson Ridge Builders Land Size: 544.00m²Floor Area: 245.48sq The Opal is a contemporary range designed for modern day living. Designed with four bedrooms, open kitchen living and double car garage, the floor plan is perfectly suited for families seeking plenty of space with all the classic must-haves for light-filled living.This design features the Pakington facade and Opal floorplan.